エムエムエスビルディング
- 所在地:東京都港区芝2丁目30番15号
- 交通 :JR山手線「田町」駅徒歩5分
- 都営三田線「三田」駅徒歩4分
- 都営三田線「三田」駅徒歩4分
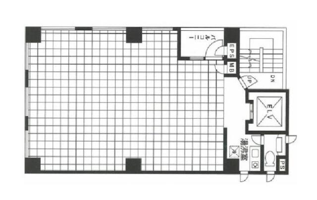
水廻りリニューアル済み!
エムエムエスビルディングの詳細情報をSOHOオフィスナビでみる


お問い合わせの際は、
「建物No.03145」とお伝えください。


| 住所 | 東京都港区芝2丁目30番15号 | 最寄駅 | JR山手線「田町」駅徒歩5分 都営三田線「三田」駅徒歩4分 都営三田線「三田」駅徒歩4分 |
|---|---|---|---|
| 築年月 | 2001年03月 | その他交通 | |
| 構造 | 鉄筋コンクリート造(RC造) 7階建 | 設備 | エレベーター , OAフロア |
| 駐車場 | 契約期間 | ||
| 備考 | - - | 更新日 | 2025年09月11日 |
| その他費用 | |||



お問い合わせの際は、「建物No.03145」とお伝えください。




























3路線へアクセスでき便利な立地!
御影石張りのおしゃれな外観が特徴的!