推奨利用人数
7人~8人
【成約済み】INPACビル(旧称:磯山ビル) 3階
- 所在地:東京都港区浜松町2丁目2番3号
- 交通:JR山手線「浜松町」駅徒歩2分
- 交通2:都営浅草線「大門」駅徒歩1分
- 交通3:都営三田線「芝公園」駅徒歩7分
| 賃料:-- (税別) | 管理費:20,000円 (税別) |
| 敷金:4ヶ月- | 礼金:0ヶ月 |
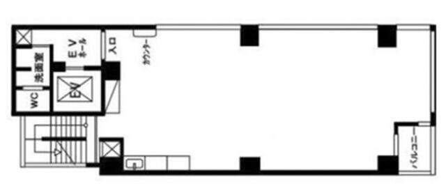
| 面積:77.06m² | 所在階:地上3階 |
| 間取り:事務所 | 築年月:1983年06月 |
| 賃料/管理費 | -- (税別)/20,000円 (税別) | フリーレント | 0ヶ月 |
|---|---|---|---|
| 敷金/礼金 | 4ヶ月/0ヶ月 | 内見・入居 | 内見可 |
| 間取り | 事務所 | 面積 | 77.06m² |
| 所在階 | 地上3階 | 最大スペース | |
| 住所 | 東京都港区浜松町2丁目2番3号 | 最寄駅 | JR山手線「浜松町」駅徒歩2分 都営浅草線「大門」駅徒歩1分 都営三田線「芝公園」駅徒歩7分 |
| その他交通 | 築年月 | 1983年06月 | |
| 方角 | 構造 | 鉄骨鉄筋コンクリート造(SRC造) 7階建 | |
| 契約期間 | 2年間 | 契約形態 | 普通借家 |
| 償却 | 0ヶ月 | 設備 | エレベーター |
| 更新料 | 1ヶ月 | 更新日 | 2025年09月11日 |
| 備考 | |||



お問い合わせの際は、「部屋No.45534」とお伝えください。





























多路線利用可能で都心の移動がスムーズです。
外観は白いタイル張り、1フロア1テナントで気兼ねなく利用できます。
近隣にコインパーキングもあり、便利です