推奨利用人数
1人~2人
【成約済み】プロスタイルウェルス西早稲田 1101号室
- 所在地:東京都新宿区西早稲田3丁目31番2号
- 交通:東京メトロ副都心線「西早稲田」駅徒歩8分
- 交通2:東京メトロ東西線「高田馬場」駅徒歩10分
- 交通3:―
| 賃料:-- | 管理費:8,000円 |
| 敷金:2ヶ月- | 礼金:0ヶ月 |
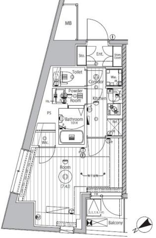
| 面積:25.07m² | 所在階:地上11階 |
| 間取り:1K | 築年月:2017年07月 |
| 賃料/管理費 | --/8,000円 | フリーレント | 0ヶ月 |
|---|---|---|---|
| 敷金/礼金 | 2ヶ月/0ヶ月 | 内見・入居 | |
| 間取り | 1K | 面積 | 25.07m² |
| 所在階 | 地上11階 | 最大スペース | |
| 住所 | 東京都新宿区西早稲田3丁目31番2号 | 最寄駅 | 東京メトロ副都心線「西早稲田」駅徒歩8分 東京メトロ東西線「高田馬場」駅徒歩10分 ― |
| その他交通 | 築年月 | 2017年07月 | |
| 方角 | 構造 | 鉄筋コンクリート造(RC造) 12階建 | |
| 契約期間 | 2年間 | 契約形態 | 普通借家 |
| 償却 | 0ヶ月 | 設備 | エレベーター |
| 更新料 | 1ヶ月 | 更新日 | 2025年09月11日 |
| 備考 | |||
| その他費用 | ・ペット飼育の場合、敷金1ヶ月積み増し ・鍵交換作業費用(入居時):20,000円(税別) ・1年未満解約時、賃料等1ヶ月分の違約金有 ・退去時清掃費用:実費 |
||



お問い合わせの際は、「部屋No.45656」とお伝えください。





























新目白通りと神田川沿いの立地。
インターネット使用無料
ペットや楽器のご相談も可能です。