推奨利用人数
20人~24人
【成約済み】新大手町ビル【事務所/3・9階以外】 2階
- 所在地:東京都千代田区大手町2丁目2番1号
- 交通:JR山手線「東京」駅徒歩3分
- 交通2:東京メトロ東西線「大手町」駅徒歩1分
- 交通3:東京メトロ銀座線「三越前」駅徒歩11分
| 賃料:相談 (税別) | 管理費:相談 (税別) |
| 敷金:相談- | 礼金:0ヶ月 |
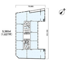
| 面積:144.2m² | 所在階:地上2階 |
| 間取り:事務所 | 築年月:1958年12月 |
| 賃料/管理費 | 相談 (税別)/相談 (税別) | フリーレント | 0ヶ月 |
|---|---|---|---|
| 敷金/礼金 | 相談/0ヶ月 | 内見・入居 | 内見可 |
| 間取り | 事務所 | 面積 | 144.2m² |
| 所在階 | 地上2階 | 最大スペース | |
| 住所 | 東京都千代田区大手町2丁目2番1号 | 最寄駅 | JR山手線「東京」駅徒歩3分 東京メトロ東西線「大手町」駅徒歩1分 東京メトロ銀座線「三越前」駅徒歩11分 |
| その他交通 | 築年月 | 1958年12月 | |
| 方角 | 構造 | 鉄骨鉄筋コンクリート造(SRC造) 10階建 | |
| 契約期間 | 応相談 | 契約形態 | 普通借家 |
| 償却 | 0ヶ月 | 設備 | エレベーター , OAフロア |
| 更新料 | 更新日 | 2025年09月11日 | |
| 備考 | |||



お問い合わせの際は、「部屋No.45690」とお伝えください。





























「新大手町ビル」は1958年竣工の歴史あるオフィスです。1999年~2001年に大規模リニューアルを実施しています。基準階1,600坪を超える規模ながら、募集時期によって様々なサイズの分割区画があります。
地下1階・1階には飲食店舗が多数あり、周囲にも多くの銀行や飲食店・カフェ、郵便局、ホテルなど便利な施設が集まっています。
男女別トイレ各階1ケ所・給湯スペースは各階2ヶ所設置、エレベーターは13基、OAフロアや65台収容可能な駐車場が併設され24時間有人管理で設備面・防犯面も安心のハイスペックオフィスです。