推奨利用人数
40人以上
【成約済み】小川ビル(神田錦町) 4階
- 所在地:東京都千代田区神田錦町2丁目11番
- 交通:東京メトロ千代田線「大手町」駅徒歩4分
- 交通2:都営新宿線「小川町」駅徒歩5分
- 交通3:東京メトロ東西線「竹橋」駅徒歩6分
| 賃料:相談 (税別) | 管理費:相談 (税別) |
| 敷金:6ヶ月- | 礼金:0ヶ月 |
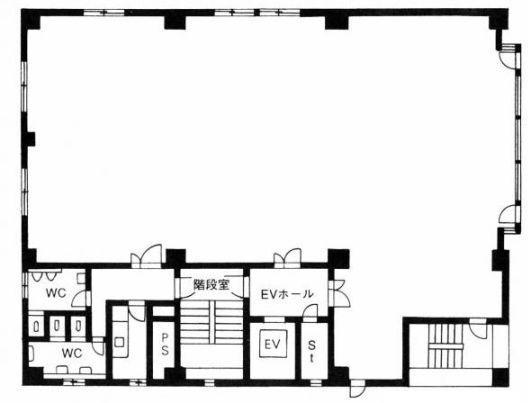
| 面積:267.87m² | 所在階:地上4階 |
| 間取り:事務所 | 築年月:1980年09月 |
| 賃料/管理費 | 相談 (税別)/相談 (税別) | フリーレント | 0ヶ月 |
|---|---|---|---|
| 敷金/礼金 | 6ヶ月/0ヶ月 | 内見・入居 | 相談 |
| 間取り | 事務所 | 面積 | 267.87m² |
| 所在階 | 地上4階 | 最大スペース | |
| 住所 | 東京都千代田区神田錦町2丁目11番 | 最寄駅 | 東京メトロ千代田線「大手町」駅徒歩4分 都営新宿線「小川町」駅徒歩5分 東京メトロ東西線「竹橋」駅徒歩6分 |
| その他交通 | JR山手線「神田」駅7分 半蔵門線「神保町」駅8分 | 築年月 | 1980年09月 |
| 方角 | 構造 | 鉄骨鉄筋コンクリート造(SRC造) 9階建 | |
| 契約期間 | その他 | 契約形態 | |
| 償却 | 1ヶ月 | 設備 | エレベーター , OAフロア |
| 更新料 | 1ヶ月 | 更新日 | 2025年09月11日 |
| 備考 | |||



お問い合わせの際は、「部屋No.45713」とお伝えください。





























1980年竣工のオフィスビル、赤レンガ張りの外観の重厚感あるオフィスビルです。最寄駅の大手町のほか、竹橋駅や小川町駅も5-6分で利用可能!利便性の良いオフィスです!
警察署や学校が集中する神田錦町界隈の閑静なオフィス街に立地しておりお仕事に集中できます!
男女別トイレや給湯が室外にあるため、室内は効率よくレイアウトすることが可能です。