推奨利用人数
15人~19人
相模屋第5ビル 7階
- 所在地:東京都千代田区一番町4番25号
- 交通:東京メトロ半蔵門線「半蔵門」駅徒歩4分
- 交通2:東京メトロ有楽町線「麹町」駅徒歩7分
- 交通3:JR中央・総武線「市ケ谷」駅徒歩10分
| 賃料:444,300円 (税別) | 管理費:0円 (税別) |
| 敷金:6ヶ月- | 礼金:0ヶ月 |
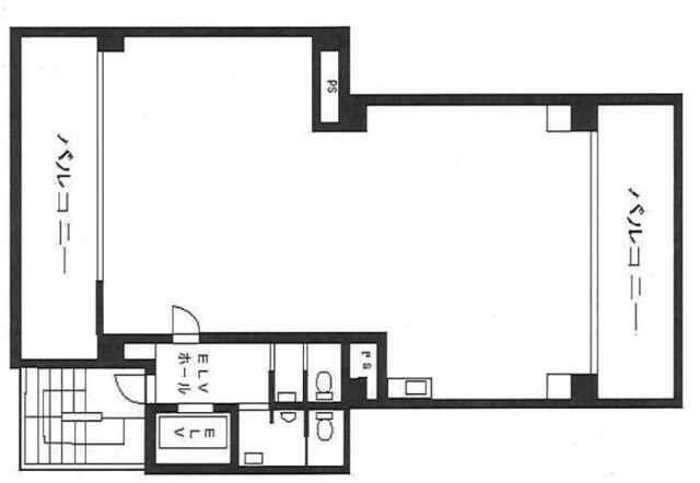
| 面積:97.92m² | 所在階:地上7階 |
| 間取り:事務所 | 築年月:1985年02月 |
| 賃料/管理費 | 444,300円 (税別)/0円 (税別) | フリーレント | 0ヶ月 |
|---|---|---|---|
| 敷金/礼金 | 6ヶ月/0ヶ月 | 内見・入居 | 内見可 |
| 間取り | 事務所 | 面積 | 97.92m² |
| 所在階 | 地上7階 | 最大スペース | |
| 住所 | 東京都千代田区一番町4番25号 | 最寄駅 | 東京メトロ半蔵門線「半蔵門」駅徒歩4分 東京メトロ有楽町線「麹町」駅徒歩7分 JR中央・総武線「市ケ谷」駅徒歩10分 |
| その他交通 | 東京メトロ丸の内線「四ツ谷」駅16分 | 築年月 | 1985年02月 |
| 方角 | 構造 | 鉄骨鉄筋コンクリート造(SRC造) 7階建 | |
| 契約期間 | 5年間 | 契約形態 | 定期借家 |
| 償却 | 0ヶ月 | 設備 | エレベーター , OAフロア |
| 更新料 | 1ヶ月 | 更新日 | 2025年09月11日 |
| 備考 | |||



お問い合わせの際は、「部屋No.45723」とお伝えください。





























複数路線利用可能で交通アクセス良好
近隣にはカフェやコンビニがあり便利です
タイルカーペット
個別空調
機械警備
24時間使用可
OAフロア
光ファイバー(MDFまで)