推奨利用人数
20人~24人
【成約済み】マニエラ銀座ビル 8階
- 所在地:東京都中央区銀座2丁目10番8号
- 交通:東京メトロ有楽町線「銀座一丁目」駅徒歩2分
- 交通2:東京メトロ銀座線「銀座」駅徒歩4分
- 交通3:東京メトロ日比谷線「東銀座」駅徒歩5分
| 賃料:相談 (税別) | 管理費:相談 (税別) |
| 敷金:12ヶ月- | 礼金:0ヶ月 |
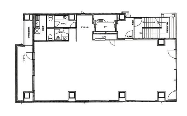
| 面積:140.33m² | 所在階:地上8階 |
| 間取り:事務所 | 築年月:2008年12月 |
| 賃料/管理費 | 相談 (税別)/相談 (税別) | フリーレント | 0ヶ月 |
|---|---|---|---|
| 敷金/礼金 | 12ヶ月/0ヶ月 | 内見・入居 | 内見可 |
| 間取り | 事務所 | 面積 | 140.33m² |
| 所在階 | 地上8階 | 最大スペース | |
| 住所 | 東京都中央区銀座2丁目10番8号 | 最寄駅 | 東京メトロ有楽町線「銀座一丁目」駅徒歩2分 東京メトロ銀座線「銀座」駅徒歩4分 東京メトロ日比谷線「東銀座」駅徒歩5分 |
| その他交通 | 築年月 | 2008年12月 | |
| 方角 | 構造 | 鉄骨構造(S造) 10階建 | |
| 契約期間 | その他 | 契約形態 | 定期借家 |
| 償却 | 0ヶ月 | 設備 | エレベーター , OAフロア |
| 更新料 | 1ヶ月 | 更新日 | 2025年09月11日 |
| 備考 | |||
| その他費用 | ・警備料:月額9,750円(税別) | ||



お問い合わせの際は、「部屋No.45724」とお伝えください。





























「マニエラ銀座ビル」は2008年竣工のオフィス、新耐震基準をクリアした建物。ガラスカーテンウォールのスタイリッシュな外観のオフィスです。
最寄り駅は銀座一丁目、駅から徒歩2分の距離です。お隣は「ウインズ銀座」ですので目印になります。ビルの1階はカフェになっていて、休憩やちょっとした打ち合わせにも重宝しそうです。
24時間いつでも使用可能、機械警備完備でセキュリティも安心のオフィスです!