推奨利用人数
25人~29人
【成約済み】土志田ビル 2階
- 所在地:東京都中央区銀座1丁目6番11号
- 交通:東京メトロ有楽町線「銀座一丁目」駅徒歩1分
- 交通2:東京メトロ日比谷線「銀座」駅徒歩4分
- 交通3:東京メトロ銀座線「京橋」駅徒歩4分
| 賃料:-- (税別) | 管理費:224,480円 (税別) |
| 敷金:10ヶ月- | 礼金:0ヶ月 |
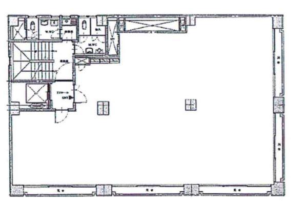
| 面積:185.52m² | 所在階:地上2階 |
| 間取り:事務所 | 築年月:1972年12月 |
| 賃料/管理費 | -- (税別)/224,480円 (税別) | フリーレント | 0ヶ月 |
|---|---|---|---|
| 敷金/礼金 | 10ヶ月/0ヶ月 | 内見・入居 | 内見可 |
| 間取り | 事務所 | 面積 | 185.52m² |
| 所在階 | 地上2階 | 最大スペース | |
| 住所 | 東京都中央区銀座1丁目6番11号 | 最寄駅 | 東京メトロ有楽町線「銀座一丁目」駅徒歩1分 東京メトロ日比谷線「銀座」駅徒歩4分 東京メトロ銀座線「京橋」駅徒歩4分 |
| その他交通 | 築年月 | 1972年12月 | |
| 方角 | 構造 | 鉄骨鉄筋コンクリート造(SRC造) 8階建 | |
| 契約期間 | 応相談 | 契約形態 | 定期借家 |
| 償却 | 0ヶ月 | 設備 | エレベーター , OAフロア |
| 更新料 | 更新日 | 2025年09月11日 | |
| 備考 | |||



お問い合わせの際は、「部屋No.45726」とお伝えください。





























1980年竣工、ベージュの石張りの外観、角地に立地する視認性の高い建物です。外観をリニューアルしていますので、築年数を感じさせない雰囲気です。
基準となるフロアは1フロア約63坪。EV1基、1フロア1テナント利用のオフィスです。
共用部に男女別トイレと給湯室がありますので、貸室内は効率よくレイアウトすることが可能です。
個別空調やOAフロア、機械警備など設備も充実しています。
銀座柳通り沿いに立地しており、周辺にはカフェや飲食店も豊富でランチにも便利です。