推奨利用人数
30人~39人
【成約済み】日本橋セントラルスクエア 5階
- 所在地:東京都中央区日本橋2丁目16番11号
- 交通:東京メトロ銀座線「日本橋」駅徒歩3分
- 交通2:JR山手線「東京」駅徒歩7分
- 交通3:東京メトロ日比谷線「茅場町」駅徒歩5分
| 賃料:相談 (税別) | 管理費:相談 (税別) |
| 敷金:8ヶ月- | 礼金:0ヶ月 |
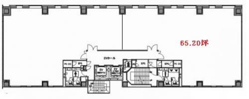
| 面積:215.54m² | 所在階:地上5階 |
| 間取り:事務所 | 築年月:2010年01月 |
| 賃料/管理費 | 相談 (税別)/相談 (税別) | フリーレント | 0ヶ月 |
|---|---|---|---|
| 敷金/礼金 | 8ヶ月/0ヶ月 | 内見・入居 | 内見可 |
| 間取り | 事務所 | 面積 | 215.54m² |
| 所在階 | 地上5階 | 最大スペース | |
| 住所 | 東京都中央区日本橋2丁目16番11号 | 最寄駅 | 東京メトロ銀座線「日本橋」駅徒歩3分 JR山手線「東京」駅徒歩7分 東京メトロ日比谷線「茅場町」駅徒歩5分 |
| その他交通 | 築年月 | 2010年01月 | |
| 方角 | 構造 | 鉄骨構造(S造) 8階建 | |
| 契約期間 | 応相談 | 契約形態 | 普通借家 |
| 償却 | 0ヶ月 | 設備 | エレベーター , OAフロア |
| 更新料 | 更新日 | 2025年09月11日 | |
| 備考 | |||



お問い合わせの際は、「部屋No.45760」とお伝えください。





























2010年竣工の築浅オフィスビル。モダンな印象の外観で視認性の高いオフィスです。新耐震基準をクリアしています。
基準となるフロアは約130坪、時期により分割区画の募集がございます。EV2基、グリッド天井、OA床、環境に配慮したLow-eペアガラス採用、共用部の男女別トイレなどスペックの高い設備もポイントです。
セキュリティは機械警備システムが導入されており、24時間いつでも安心してご利用いただけます。
日本橋駅から徒歩3分、永代通りに程近く、周辺は飲食店や銀行など利便性も良好です。