推奨利用人数
13人~14人
【成約済み】櫻正宗東日本橋ビル 2階
- 所在地:東京都中央区東日本橋3丁目12番12号
- 交通:都営浅草線「東日本橋」駅徒歩1分
- 交通2:都営新宿線「馬喰横山」駅徒歩4分
- 交通3:東京メトロ日比谷線「小伝馬町」駅徒歩10分
| 賃料:-- (税別) | 管理費:0円 (税別) |
| 敷金:6ヶ月- | 礼金:0ヶ月 |
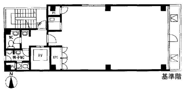
| 面積:84.03m² | 所在階:地上2階 |
| 間取り:事務所 | 築年月:1991年02月 |
| 賃料/管理費 | -- (税別)/0円 (税別) | フリーレント | 0ヶ月 |
|---|---|---|---|
| 敷金/礼金 | 6ヶ月/0ヶ月 | 内見・入居 | 相談 |
| 間取り | 事務所 | 面積 | 84.03m² |
| 所在階 | 地上2階 | 最大スペース | |
| 住所 | 東京都中央区東日本橋3丁目12番12号 | 最寄駅 | 都営浅草線「東日本橋」駅徒歩1分 都営新宿線「馬喰横山」駅徒歩4分 東京メトロ日比谷線「小伝馬町」駅徒歩10分 |
| その他交通 | 築年月 | 1991年02月 | |
| 方角 | 構造 | 鉄骨構造(S造) 9階建 | |
| 契約期間 | 2年間 | 契約形態 | 普通借家 |
| 償却 | 0ヶ月 | 設備 | エレベーター |
| 更新料 | 0ヶ月 | 更新日 | 2025年09月11日 |
| 備考 | |||



お問い合わせの際は、「部屋No.45836」とお伝えください。





























1991年竣工、グレーの外壁に大きな窓が特徴的なシンプルでスタイリッシュな外観の建物です。新耐震基準をクリアしています。
1フロア1テナント利用、室外に男女別のトイレがあり、貸室内には余計な柱もありませんのでレイアウトしやすい間取りです。機械警備完備でセキュリティ面も安心です。
最寄の東日本橋駅は徒歩1分の好アクセス!駅周辺にはカフェや飲食店、コンビニもありますのでランチ時にも困りません。