推奨利用人数
15人~19人
【成約済み】千城ビル 1階
- 所在地:東京都中央区日本橋本町4丁目8番16号
- 交通:東京メトロ銀座線「三越前」駅徒歩4分
- 交通2:東京メトロ日比谷線「小伝馬町」駅徒歩6分
- 交通3:JR山手線「神田」駅徒歩7分
| 賃料:-- (税別) | 管理費:0円 (税別) |
| 敷金:10ヶ月- | 礼金:0ヶ月 |
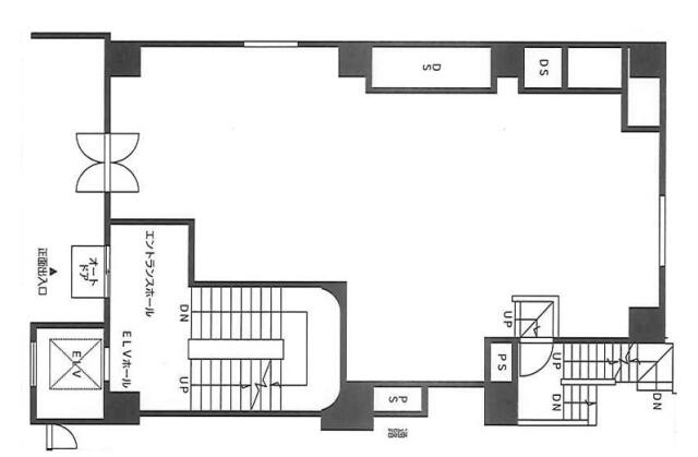
| 面積:115.67m² | 所在階:地上1階 |
| 間取り:事務所 | 築年月:1979年08月 |
| 賃料/管理費 | -- (税別)/0円 (税別) | フリーレント | 0ヶ月 |
|---|---|---|---|
| 敷金/礼金 | 10ヶ月/0ヶ月 | 内見・入居 | 内見可 |
| 間取り | 事務所 | 面積 | 115.67m² |
| 所在階 | 地上1階 | 最大スペース | |
| 住所 | 東京都中央区日本橋本町4丁目8番16号 | 最寄駅 | 東京メトロ銀座線「三越前」駅徒歩4分 東京メトロ日比谷線「小伝馬町」駅徒歩6分 JR山手線「神田」駅徒歩7分 |
| その他交通 | JR総武快速線「新日本橋」駅2分 | 築年月 | 1979年08月 |
| 方角 | 構造 | 鉄骨鉄筋コンクリート造(SRC造) 9階建 | |
| 契約期間 | 2年間 | 契約形態 | 普通借家 |
| 償却 | 1ヶ月 | 設備 | エレベーター |
| 更新料 | 1ヶ月 | 更新日 | 2025年09月11日 |
| 備考 | ・エントランス 平日:7時-21時 土曜日:7時-19時 日曜:閉 祝日設定なし | ||
| その他費用 | ・看板使用料:月額20,000円(税別) | ||



お問い合わせの際は、「部屋No.45859」とお伝えください。





























1979年竣工のオフィスビル、最寄の新日本橋駅のほか、三越前駅や小伝馬町も徒歩6分程度で利用できアクセス大変便利な立地です。
OAフロアや男女別トイレ、機械警備完備など設備面も充実しています。
周辺には飲食店やコインパーキングなどもあり、隣のビルにはコンビニ、利便性も良好です。