推奨利用人数
15人~19人
【成約済み】ユニオン小石川第二ビル(旧称:丸統ビル) 701号室
- 所在地:東京都文京区小石川2丁目1番1号
- 交通:東京メトロ丸の内線「後楽園」駅徒歩3分
- 交通2:都営三田線「春日」駅徒歩5分
- 交通3:都営三田線「水道橋」駅徒歩13分
| 賃料:-- (税別) | 管理費:10,000円 (税別) |
| 敷金:2ヶ月- | 礼金:0ヶ月 |
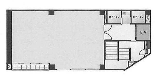
| 面積:91.17m² | 所在階:地上7階 |
| 間取り:事務所 | 築年月:1978年07月 |
| 賃料/管理費 | -- (税別)/10,000円 (税別) | フリーレント | 4ヶ月 |
|---|---|---|---|
| 敷金/礼金 | 2ヶ月/0ヶ月 | 内見・入居 | 内見可 |
| 間取り | 事務所 | 面積 | 91.17m² |
| 所在階 | 地上7階 | 最大スペース | |
| 住所 | 東京都文京区小石川2丁目1番1号 | 最寄駅 | 東京メトロ丸の内線「後楽園」駅徒歩3分 都営三田線「春日」駅徒歩5分 都営三田線「水道橋」駅徒歩13分 |
| その他交通 | 築年月 | 1978年07月 | |
| 方角 | 構造 | 鉄骨鉄筋コンクリート造(SRC造) 9階建 | |
| 契約期間 | 3年間 | 契約形態 | 定期借家 |
| 償却 | 1ヶ月 | 設備 | エレベーター |
| 更新料 | 1ヶ月 | 更新日 | 2025年09月11日 |
| 備考 | |||



お問い合わせの際は、「部屋No.45874」とお伝えください。





























男女別トイレが共用部にありますので、室内は効率よくレイアウトすることができます。
春日駅、水道橋駅も利用可能でアクセス大変便利です!
東京ドーム、小石川後楽園など、代表的なスポットが近いのも魅力的です