推奨利用人数
9人~10人
【成約済み】秋葉原清新ビル 4階
- 所在地:東京都千代田区神田岩本町1番13号
- 交通:東京メトロ日比谷線「秋葉原」駅徒歩2分
- 交通2:都営新宿線「岩本町」駅徒歩2分
- 交通3:東京メトロ銀座線「神田」駅徒歩6分
| 賃料:相談 (税別) | 管理費:相談 (税別) |
| 敷金:12ヶ月- | 礼金:0ヶ月 |
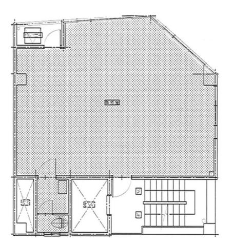
| 面積:60.59m² | 所在階:地上4階 |
| 間取り:事務所 | 築年月:1977年01月 |
| 賃料/管理費 | 相談 (税別)/相談 (税別) | フリーレント | 0ヶ月 |
|---|---|---|---|
| 敷金/礼金 | 12ヶ月/0ヶ月 | 内見・入居 | 内見可 |
| 間取り | 事務所 | 面積 | 60.59m² |
| 所在階 | 地上4階 | 最大スペース | |
| 住所 | 東京都千代田区神田岩本町1番13号 | 最寄駅 | 東京メトロ日比谷線「秋葉原」駅徒歩2分 都営新宿線「岩本町」駅徒歩2分 東京メトロ銀座線「神田」駅徒歩6分 |
| その他交通 | 築年月 | 1977年01月 | |
| 方角 | 構造 | 鉄骨構造(S造) 7階建 | |
| 契約期間 | 応相談 | 契約形態 | 定期借家 |
| 償却 | 2ヶ月 | 設備 | エレベーター , OAフロア |
| 更新料 | 1ヶ月 | 更新日 | 2025年09月11日 |
| 備考 | |||



お問い合わせの際は、「部屋No.45875」とお伝えください。





























1977年竣工、グレーのパネル張りの外観の建物です。昭和通り沿いの角地に立地しており視認性も良好です。
基準となるフロアは1フロア約18坪。EV1基、1フロア1テナント利用、室内に専用のトイレと水回りがあり使い勝手も良好です。
個別空調やOAフロアなど設備面でも充実しています。
岩本町駅のA3番出入口すぐそば、1階に店舗が入居していますので目印になります。
周辺にはカフェや飲食店、コンビニなどが並び利便性も良好です。