推奨利用人数
20人~24人
【成約済み】ACN日本橋ビル 3階
- 所在地:東京都中央区日本橋箱崎町10番2号
- 交通:東京メトロ半蔵門線「水天宮前」駅徒歩5分
- 交通2:東京メトロ東西線「茅場町」駅徒歩6分
- 交通3:東京メトロ日比谷線「人形町」駅徒歩12分
| 賃料:相談 (税別) | 管理費:相談 (税別) |
| 敷金:8ヶ月- | 礼金:0ヶ月 |
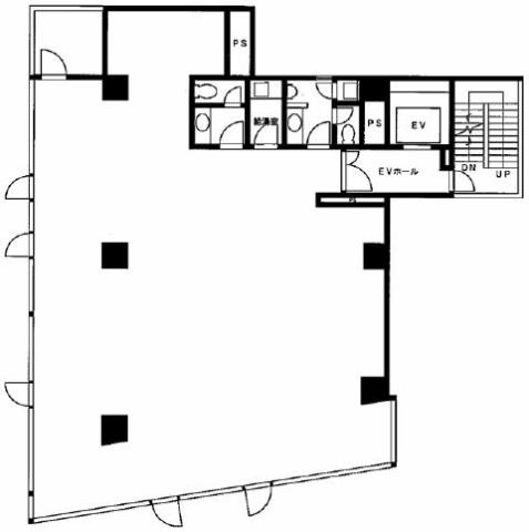
| 面積:163.27m² | 所在階:地上3階 |
| 間取り:事務所 | 築年月:1992年09月 |
| 賃料/管理費 | 相談 (税別)/相談 (税別) | フリーレント | 0ヶ月 |
|---|---|---|---|
| 敷金/礼金 | 8ヶ月/0ヶ月 | 内見・入居 | 相談 |
| 間取り | 事務所 | 面積 | 163.27m² |
| 所在階 | 地上3階 | 最大スペース | |
| 住所 | 東京都中央区日本橋箱崎町10番2号 | 最寄駅 | 東京メトロ半蔵門線「水天宮前」駅徒歩5分 東京メトロ東西線「茅場町」駅徒歩6分 東京メトロ日比谷線「人形町」駅徒歩12分 |
| その他交通 | JR京葉線「八丁堀」駅13分 | 築年月 | 1992年09月 |
| 方角 | 構造 | 鉄骨鉄筋コンクリート造(SRC造) 7階建 | |
| 契約期間 | 2年間 | 契約形態 | 普通借家 |
| 償却 | 1ヶ月 | 設備 | エレベーター , OAフロア |
| 更新料 | 1ヶ月 | 更新日 | 2025年09月11日 |
| 備考 | ・室内写真は居抜き部屋の様子です。号室によっては室内は異なりますので、詳細はお問い合わせください。 | ||
| その他費用 | ・保証会社加入必須 | ||



お問い合わせの際は、「部屋No.45889」とお伝えください。





























1992年竣工、新耐震基準をクリアした建物です。2017年リニューアル工事完了のオフィスです。
窓面が多く、明るく開放的なオフィスです。角地に立地しています。
共用部は大理石を使用し高級感があり落ち着いた雰囲気です。
男女別トイレや給湯、OAフロア、機械警備等完備されていて設備面も充実しています。