推奨利用人数
13人~14人
【成約済み】英守東京ビル 5階
- 所在地:東京都中央区日本橋富沢町11番6号
- 交通:東京メトロ日比谷線「小伝馬町」駅徒歩6分
- 交通2:都営浅草線「東日本橋」駅徒歩6分
- 交通3:都営新宿線「馬喰横山」駅徒歩4分
| 賃料:-- (税別) | 管理費:0円 (税別) |
| 敷金:2ヶ月- | 礼金:0ヶ月 |
| 面積:81.36m² | 所在階:地上5階 |
| 間取り:事務所 | 築年月:1973年08月 |
| 賃料/管理費 | -- (税別)/0円 (税別) | フリーレント | 0ヶ月 |
|---|---|---|---|
| 敷金/礼金 | 2ヶ月/0ヶ月 | 内見・入居 | 内見可 |
| 間取り | 事務所 | 面積 | 81.36m² |
| 所在階 | 地上5階 | 最大スペース | |
| 住所 | 東京都中央区日本橋富沢町11番6号 | 最寄駅 | 東京メトロ日比谷線「小伝馬町」駅徒歩6分 都営浅草線「東日本橋」駅徒歩6分 都営新宿線「馬喰横山」駅徒歩4分 |
| その他交通 | 築年月 | 1973年08月 | |
| 方角 | 構造 | 鉄骨構造(S造) 7階建 | |
| 契約期間 | 2年間 | 契約形態 | 普通借家 |
| 償却 | 1ヶ月 | 設備 | エレベーター |
| 更新料 | 1ヶ月 | 更新日 | 2025年09月11日 |
| 備考 | |||



お問い合わせの際は、「部屋No.45897」とお伝えください。





























1973年竣工、白とグレーの外壁、間接照明を用いたエントランスがおしゃれな印象の建物です。
外装がリニューアルされていますので、築年数を感じさせないオフィスです。
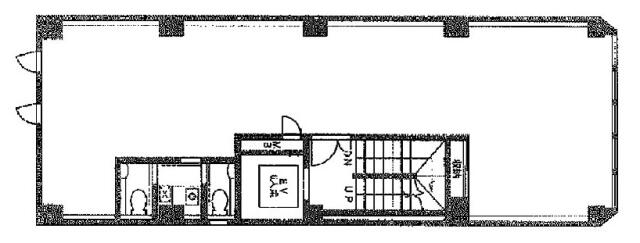
基準となるフロアは1フロア約17坪。EV1基、1フロア1テナント利用で室内に専用のトイレがあります。
機械警備完備でセキュリティ面も安心。
織物中央通り沿いに立地、周辺はオフィスや住宅が並ぶ落ち着いた雰囲気のエリアです。