推奨利用人数
15人~19人
【成約済み】芝ビル(芝5) 2B号室
- 所在地:東京都港区芝5丁目16番7号
- 交通:都営浅草線「三田」駅徒歩2分
- 交通2:JR山手線「田町」駅徒歩4分
- 交通3:都営三田線「芝公園」駅徒歩8分
| 賃料:-- (税別) | 管理費:0円 (税別) |
| 敷金:2ヶ月- | 礼金:0ヶ月 |
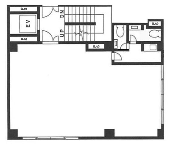
| 面積:89.98m² | 所在階:地上2階 |
| 間取り:事務所 | 築年月:1973年11月 |
| 賃料/管理費 | -- (税別)/0円 (税別) | フリーレント | 0ヶ月 |
|---|---|---|---|
| 敷金/礼金 | 2ヶ月/0ヶ月 | 内見・入居 | 相談 |
| 間取り | 事務所 | 面積 | 89.98m² |
| 所在階 | 地上2階 | 最大スペース | |
| 住所 | 東京都港区芝5丁目16番7号 | 最寄駅 | 都営浅草線「三田」駅徒歩2分 JR山手線「田町」駅徒歩4分 都営三田線「芝公園」駅徒歩8分 |
| その他交通 | 築年月 | 1973年11月 | |
| 方角 | 構造 | 鉄筋コンクリート造(RC造) 7階建 | |
| 契約期間 | 2年間 | 契約形態 | 定期借家 |
| 償却 | 0ヶ月 | 設備 | エレベーター |
| 更新料 | 1ヶ月 | 更新日 | 2025年09月11日 |
| 備考 | ・エントランス開館時間:7時~21時(警備カードで24時間入退館可能) | ||



お問い合わせの際は、「部屋No.45898」とお伝えください。





























1・2Fが飲食店舗、斜め向かいが芝税務署なので目印になります
桜田通りと日比谷通りをつなぐ通りに面した好立地!