推奨利用人数
25人~29人
【成約済み】Daiwa銀座ビル 3D号室
- 所在地:東京都中央区銀座6丁目2番1号
- 交通:東京メトロ丸の内線「銀座」駅徒歩3分
- 交通2:東京メトロ日比谷線「日比谷」駅徒歩4分
- 交通3:JR山手線「有楽町」駅徒歩5分
| 賃料:相談 (税別) | 管理費:相談 (税別) |
| 敷金:12ヶ月- | 礼金:0ヶ月 |
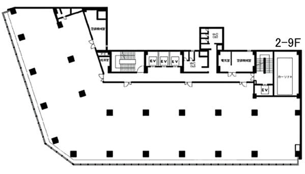
| 面積:194.61m² | 所在階:地上3階 |
| 間取り:事務所 | 築年月:1972年10月 |
| 賃料/管理費 | 相談 (税別)/相談 (税別) | フリーレント | 6ヶ月 |
|---|---|---|---|
| 敷金/礼金 | 12ヶ月/0ヶ月 | 内見・入居 | |
| 間取り | 事務所 | 面積 | 194.61m² |
| 所在階 | 地上3階 | 最大スペース | |
| 住所 | 東京都中央区銀座6丁目2番1号 | 最寄駅 | 東京メトロ丸の内線「銀座」駅徒歩3分 東京メトロ日比谷線「日比谷」駅徒歩4分 JR山手線「有楽町」駅徒歩5分 |
| その他交通 | 都営三田線「内幸町」駅10分 都営浅草線「東銀座」駅10分 | 築年月 | 1972年10月 |
| 方角 | 構造 | 鉄骨鉄筋コンクリート造(SRC造) 12階建 | |
| 契約期間 | その他 | 契約形態 | |
| 償却 | 0ヶ月 | 設備 | エレベーター , OAフロア |
| 更新料 | 更新日 | 2025年09月11日 | |
| 備考 |
駐車場:65,000円(税別) エントランス開閉時間:月~金:8時~20時 土日祝:終日閉館 |
||



お問い合わせの際は、「部屋No.45905」とお伝えください。





























銀座駅から徒歩3分
東急プラザ銀座、日比谷シャンテ近く
新耐震にリニューアル工事済
個別空調
24時間使用可
トイレ共用部男女別
OAフロア