推奨利用人数
40人以上
あや九段ビル 4階
- 所在地:東京都千代田区九段南2丁目3番27号
- 交通:東京メトロ東西線「九段下」駅徒歩6分
- 交通2:JR中央・総武線「市ケ谷」駅徒歩11分
- 交通3:東京メトロ半蔵門線「半蔵門」駅徒歩13分
| 賃料:相談 (税別) | 管理費:相談 (税別) |
| 敷金:相談- | 礼金:0ヶ月 |
| 面積:284.83m² | 所在階:地上4階 |
| 間取り:事務所 | 築年月:1986年04月 |
| 賃料/管理費 | 相談 (税別)/相談 (税別) | フリーレント | 0ヶ月 |
|---|---|---|---|
| 敷金/礼金 | 相談/0ヶ月 | 内見・入居 | 相談 |
| 間取り | 事務所 | 面積 | 284.83m² |
| 所在階 | 地上4階 | 最大スペース | |
| 住所 | 東京都千代田区九段南2丁目3番27号 | 最寄駅 | 東京メトロ東西線「九段下」駅徒歩6分 JR中央・総武線「市ケ谷」駅徒歩11分 東京メトロ半蔵門線「半蔵門」駅徒歩13分 |
| その他交通 | 東京メトロ南北線「飯田橋」駅14分 | 築年月 | 1986年04月 |
| 方角 | 構造 | 鉄骨鉄筋コンクリート造(SRC造) 7階建 | |
| 契約期間 | 2年間 | 契約形態 | 普通借家 |
| 償却 | 0ヶ月 | 設備 | エレベーター |
| 更新料 | 0ヶ月 | 更新日 | 2025年09月11日 |
| 備考 | |||



お問い合わせの際は、「部屋No.45918」とお伝えください。





























1986年竣工、シルバーのパネル張りのシンプルな外観の建物です。新耐震基準をクリアしています。
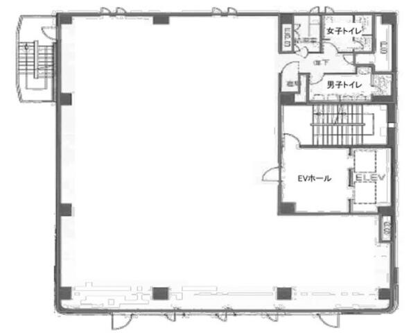
基準となるフロアは1フロア約86坪。EVは2基設置されていますので、朝夕の忙しい時間帯もストレスなくご利用いただけます。
1フロア1テナント利用、貸室内に男女別のトイレと給湯室があり、使い勝手も良好です。
複数路線利用可能で交通アクセス良好!内堀通り沿いに面しており、周辺は落ち着いたオフィス街です。