推奨利用人数
25人~29人
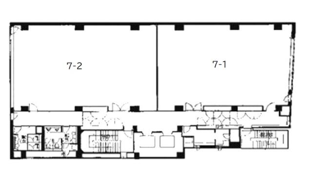
【成約済み】銀座ヤマトビル(銀座7) 7階1号室
- 所在地:東京都中央区銀座7丁目9番17号
- 交通:東京メトロ銀座線「銀座」駅徒歩4分
- 交通2:東京メトロ日比谷線「東銀座」駅徒歩4分
- 交通3:JR山手線「新橋」駅徒歩7分
| 賃料:相談 (税別) | 管理費:相談 (税別) |
| 敷金:相談- | 礼金:0ヶ月 |
| 面積:175.04m² | 所在階:地上7階 |
| 間取り:事務所 | 築年月:2003年09月 |
| 賃料/管理費 | 相談 (税別)/相談 (税別) | フリーレント | 0ヶ月 |
|---|---|---|---|
| 敷金/礼金 | 相談/0ヶ月 | 内見・入居 | 内見可 |
| 間取り | 事務所 | 面積 | 175.04m² |
| 所在階 | 地上7階 | 最大スペース | |
| 住所 | 東京都中央区銀座7丁目9番17号 | 最寄駅 | 東京メトロ銀座線「銀座」駅徒歩4分 東京メトロ日比谷線「東銀座」駅徒歩4分 JR山手線「新橋」駅徒歩7分 |
| その他交通 | 築年月 | 2003年09月 | |
| 方角 | 構造 | 鉄骨構造(S造) 8階建 | |
| 契約期間 | 応相談 | 契約形態 | 定期借家 |
| 償却 | 0ヶ月 | 設備 | エレベーター , OAフロア |
| 更新料 | 0ヶ月 | 更新日 | 2025年09月11日 |
| 備考 | |||



お問い合わせの際は、「部屋No.45937」とお伝えください。





























2003年竣工、落ち着いたグレーのタイル張りの外観の建物です。新耐震基準をクリアしています。
基準となるフロアは1フロア約110坪。EV2基、募集時期やフロアにより分割区画がございます。
各階男女別トイレ、個別空調、OAフロア、機械警備など設備も充実しています。
多くの店舗や飲食店などが並ぶ銀座中央通り沿いに立地。新橋駅へも徒歩7分のアクセスで便利です。