推奨利用人数
20人~24人
【成約済み】陽光銀座三原橋ビル 5階
- 所在地:東京都中央区銀座4丁目9番6号
- 交通:東京メトロ日比谷線「東銀座」駅徒歩1分
- 交通2:東京メトロ銀座線「銀座」駅徒歩2分
- 交通3:JR山手線「新橋」駅徒歩11分
| 賃料:-- (税別) | 管理費:0円 (税別) |
| 敷金:10ヶ月- | 礼金:0ヶ月 |
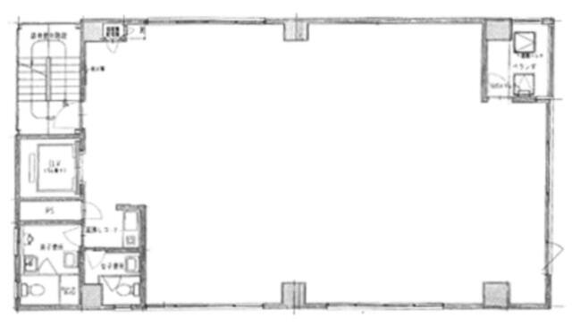
| 面積:143.37m² | 所在階:地上5階 |
| 間取り:事務所 | 築年月:1984年12月 |
| 賃料/管理費 | -- (税別)/0円 (税別) | フリーレント | 0ヶ月 |
|---|---|---|---|
| 敷金/礼金 | 10ヶ月/0ヶ月 | 内見・入居 | 内見可 |
| 間取り | 事務所 | 面積 | 143.37m² |
| 所在階 | 地上5階 | 最大スペース | |
| 住所 | 東京都中央区銀座4丁目9番6号 | 最寄駅 | 東京メトロ日比谷線「東銀座」駅徒歩1分 東京メトロ銀座線「銀座」駅徒歩2分 JR山手線「新橋」駅徒歩11分 |
| その他交通 | 築年月 | 1984年12月 | |
| 方角 | 構造 | 鉄骨鉄筋コンクリート造(SRC造) 8階建 | |
| 契約期間 | その他 | 契約形態 | |
| 償却 | 2ヶ月 | 設備 | エレベーター |
| 更新料 | 1ヶ月 | 更新日 | 2025年09月11日 |
| 備考 | |||



お問い合わせの際は、「部屋No.45939」とお伝えください。





























1984年竣工、茶色のタイル張りの重厚感のある外観の建物です。1階には飲食店があり目印になります。新耐震基準をクリアしています。
最寄の東銀座駅は徒歩1分、晴海通りや昭和通りが近く利便性も良好です。
1フロア約40坪、各階に男女別トイレを完備しており、24時間のご利用が可能です。