推奨利用人数
40人以上
第三大倉ビル 3階
- 所在地:東京都中央区日本橋茅場町2丁目17番7号
- 交通:東京メトロ東西線「茅場町」駅徒歩2分
- 交通2:東京メトロ日比谷線「八丁堀」駅徒歩5分
- 交通3:東京メトロ半蔵門線「水天宮前」駅徒歩9分
| 賃料:824,000円 (税別) | 管理費:263,680円 (税別) |
| 敷金:6ヶ月- | 礼金:0ヶ月 |
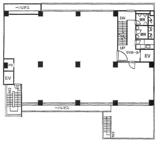
| 面積:272.4m² | 所在階:地上3階 |
| 間取り:事務所 | 築年月:1983年01月 |
| 賃料/管理費 | 824,000円 (税別)/263,680円 (税別) | フリーレント | 0ヶ月 |
|---|---|---|---|
| 敷金/礼金 | 6ヶ月/0ヶ月 | 内見・入居 | 内見可 |
| 間取り | 事務所 | 面積 | 272.4m² |
| 所在階 | 地上3階 | 最大スペース | |
| 住所 | 東京都中央区日本橋茅場町2丁目17番7号 | 最寄駅 | 東京メトロ東西線「茅場町」駅徒歩2分 東京メトロ日比谷線「八丁堀」駅徒歩5分 東京メトロ半蔵門線「水天宮前」駅徒歩9分 |
| その他交通 | 築年月 | 1983年01月 | |
| 方角 | 構造 | 鉄骨鉄筋コンクリート造(SRC造) 9階建 | |
| 契約期間 | 2年間 | 契約形態 | 普通借家 |
| 償却 | 2ヶ月 | 設備 | エレベーター , OAフロア |
| 更新料 | 1ヶ月 | 更新日 | 2025年09月11日 |
| 備考 | |||



お問い合わせの際は、「部屋No.45942」とお伝えください。





























1983年竣工、温かみのあるレンガ調タイル張りの外観の建物です。新耐震基準をクリアしています。
永代通りから少し入った場所に立地していますので、周辺は落ち着いた雰囲気のエリアです。
1フロア1テナント利用、各階男女別トイレも完備しており、24時間ご利用いただけます。