推奨利用人数
20人~24人
近仁ビル(キンニビル) 2階
- 所在地:東京都中央区日本橋小網町3番17号
- 交通:東京メトロ日比谷線「茅場町」駅徒歩5分
- 交通2:東京メトロ半蔵門線「水天宮前」駅徒歩5分
- 交通3:都営浅草線「人形町」駅徒歩11分
| 賃料:680,000円 (税別) | 管理費:0円 (税別) |
| 敷金:8ヶ月- | 礼金:1ヶ月 |
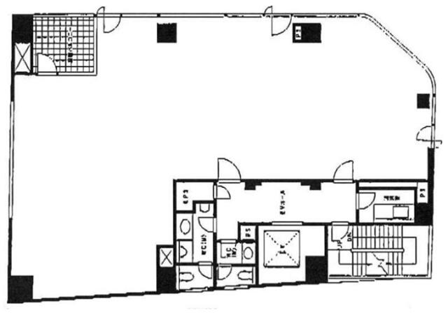
| 面積:158.84m² | 所在階:地上2階 |
| 間取り:事務所 | 築年月:1990年09月 |
| 賃料/管理費 | 680,000円 (税別)/0円 (税別) | フリーレント | 0ヶ月 |
|---|---|---|---|
| 敷金/礼金 | 8ヶ月/1ヶ月 | 内見・入居 | 内見可 |
| 間取り | 事務所 | 面積 | 158.84m² |
| 所在階 | 地上2階 | 最大スペース | |
| 住所 | 東京都中央区日本橋小網町3番17号 | 最寄駅 | 東京メトロ日比谷線「茅場町」駅徒歩5分 東京メトロ半蔵門線「水天宮前」駅徒歩5分 都営浅草線「人形町」駅徒歩11分 |
| その他交通 | 築年月 | 1990年09月 | |
| 方角 | 構造 | 鉄骨鉄筋コンクリート造(SRC造) 7階建 | |
| 契約期間 | 2年間 | 契約形態 | 普通借家 |
| 償却 | 0ヶ月 | 設備 | エレベーター , OAフロア |
| 更新料 | 0ヶ月 | 更新日 | 2025年09月11日 |
| 備考 | |||



お問い合わせの際は、「部屋No.45960」とお伝えください。





























首都高速箱崎ランプ近くに立地するオフィスです。角地に立地しているため視認性も良好!
1フロア1テナント利用、EVホールに男女別トイレと給湯室があり、貸室内は効率よくレイアウト可能です。
水天宮前駅周辺には飲食店が多数あり便利です