推奨利用人数
9人~10人
【成約済み】新橋安達ビル 4階
- 所在地:東京都港区新橋5丁目28番7号
- 交通:JR山手線「新橋」駅徒歩6分
- 交通2:都営大江戸線「汐留」駅徒歩7分
- 交通3:都営三田線「御成門」駅徒歩8分
| 賃料:-- (税別) | 管理費:33,800円 (税別) |
| 敷金:8ヶ月- | 礼金:0ヶ月 |
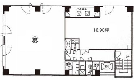
| 面積:55.87m² | 所在階:地上4階 |
| 間取り:事務所 | 築年月:1984年01月 |
| 賃料/管理費 | -- (税別)/33,800円 (税別) | フリーレント | 0ヶ月 |
|---|---|---|---|
| 敷金/礼金 | 8ヶ月/0ヶ月 | 内見・入居 | 内見可 |
| 間取り | 事務所 | 面積 | 55.87m² |
| 所在階 | 地上4階 | 最大スペース | |
| 住所 | 東京都港区新橋5丁目28番7号 | 最寄駅 | JR山手線「新橋」駅徒歩6分 都営大江戸線「汐留」駅徒歩7分 都営三田線「御成門」駅徒歩8分 |
| その他交通 | 築年月 | 1984年01月 | |
| 方角 | 構造 | 鉄骨鉄筋コンクリート造(SRC造) 8階建 | |
| 契約期間 | その他 | 契約形態 | |
| 償却 | 2ヶ月 | 設備 | エレベーター |
| 更新料 | 0ヶ月 | 更新日 | 2025年09月11日 |
| 備考 | |||



お問い合わせの際は、「部屋No.45965」とお伝えください。





























汐留駅から徒歩7分の好立地
柳通り沿いにあり、落ち着いた環境です
複数路線利用可能で交通アクセス良好
個別空調
24時間使用可能
トイレ男女別
機械警備
光ファイバー