推奨利用人数
20人~24人
【成約済み】塩田トゥール秋葉原ビル 4階
- 所在地:東京都千代田区外神田4丁目6番1号
- 交通:JR山手線「秋葉原」駅徒歩7分
- 交通2:東京メトロ銀座線「末広町」駅徒歩1分
- 交通3:東京メトロ千代田線「湯島」駅徒歩7分
| 賃料:-- (税別) | 管理費:144,130円 (税別) |
| 敷金:8ヶ月- | 礼金:0ヶ月 |
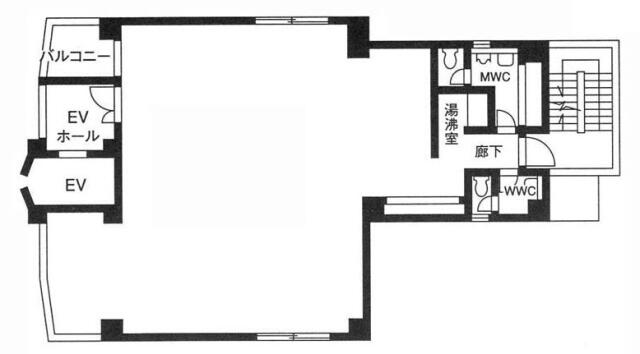
| 面積:136.13m² | 所在階:地上4階 |
| 間取り:事務所 | 築年月:1989年01月 |
| 賃料/管理費 | -- (税別)/144,130円 (税別) | フリーレント | 0ヶ月 |
|---|---|---|---|
| 敷金/礼金 | 8ヶ月/0ヶ月 | 内見・入居 | 相談 |
| 間取り | 事務所 | 面積 | 136.13m² |
| 所在階 | 地上4階 | 最大スペース | |
| 住所 | 東京都千代田区外神田4丁目6番1号 | 最寄駅 | JR山手線「秋葉原」駅徒歩7分 東京メトロ銀座線「末広町」駅徒歩1分 東京メトロ千代田線「湯島」駅徒歩7分 |
| その他交通 | 築年月 | 1989年01月 | |
| 方角 | 構造 | 鉄筋コンクリート造(RC造) 10階建 | |
| 契約期間 | 2年間 | 契約形態 | 普通借家 |
| 償却 | 2ヶ月 | 設備 | エレベーター |
| 更新料 | 0ヶ月 | 更新日 | 2025年09月11日 |
| 備考 | |||



お問い合わせの際は、「部屋No.45977」とお伝えください。





























1989年竣工、ピンクベージュ色のタイル張り砥石張りの外観の高級感のある建物です。新耐震基準をクリアしています。
1Fにはコンビニエンスストアがあり、目印になります。
基準となるフロアは1フロア約40坪。EV1基、1フロア1テナント利用のオフィスです。
周辺は飲食店やコンビニ、銀行などが多数あり便利なエリア。最寄りの末広町駅へは徒歩1分の好アクセスです!