推奨利用人数
20人~24人
【成約済み】ユーデン浜松町ビル 8階
- 所在地:東京都港区浜松町1丁目2番14号
- 交通:JR山手線「浜松町」駅徒歩6分
- 交通2:都営大江戸線「大門」駅徒歩8分
- 交通3:都営三田線「御成門」駅徒歩6分
| 賃料:-- (税別) | 管理費:119,040円 (税別) |
| 敷金:10ヶ月- | 礼金:0ヶ月 |
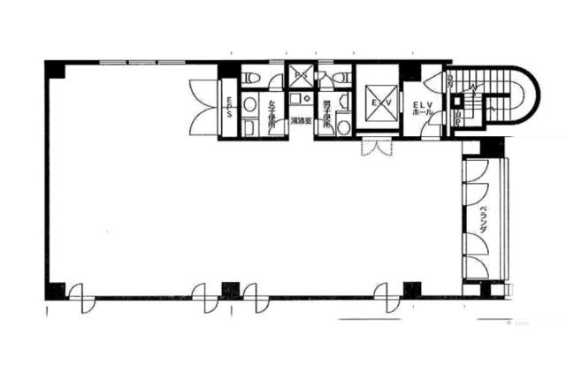
| 面積:131.17m² | 所在階:地上8階 |
| 間取り:事務所 | 築年月:1989年01月 |
| 賃料/管理費 | -- (税別)/119,040円 (税別) | フリーレント | 0ヶ月 |
|---|---|---|---|
| 敷金/礼金 | 10ヶ月/0ヶ月 | 内見・入居 | 内見可 |
| 間取り | 事務所 | 面積 | 131.17m² |
| 所在階 | 地上8階 | 最大スペース | |
| 住所 | 東京都港区浜松町1丁目2番14号 | 最寄駅 | JR山手線「浜松町」駅徒歩6分 都営大江戸線「大門」駅徒歩8分 都営三田線「御成門」駅徒歩6分 |
| その他交通 | 築年月 | 1989年01月 | |
| 方角 | 構造 | 鉄骨鉄筋コンクリート造(SRC造) 8階建 | |
| 契約期間 | 2年間 | 契約形態 | 普通借家 |
| 償却 | 2ヶ月 | 設備 | エレベーター |
| 更新料 | 更新日 | 2025年09月11日 | |
| 備考 | |||



お問い合わせの際は、「部屋No.45980」とお伝えください。





























大門駅や御成門駅も徒歩6分以内で利用可能、アクセスも良好です
第一京浜から少し入った場所に立地しています
周辺はオフィスビルが立ち並ぶ、比較的落ち着いた環境
24時間いつでもご利用可能、機械警備完備ですので
セキュリティ面も安心です
1フロア1テナント、男女別トイレのオフィスです!