推奨利用人数
25人~29人
【成約済み】不二ラテックスビル 8階
- 所在地:東京都千代田区神田錦町3丁目19番1号
- 交通:東京メトロ東西線「竹橋」駅徒歩3分
- 交通2:東京メトロ半蔵門線「神保町」駅徒歩5分
- 交通3:JR山手線「神田」駅徒歩12分
| 賃料:相談 (税別) | 管理費:相談 (税別) |
| 敷金:5ヶ月- | 礼金:0ヶ月 |
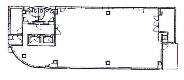
| 面積:178.38m² | 所在階:地上8階 |
| 間取り:事務所 | 築年月:1982年06月 |
| 賃料/管理費 | 相談 (税別)/相談 (税別) | フリーレント | 0ヶ月 |
|---|---|---|---|
| 敷金/礼金 | 5ヶ月/0ヶ月 | 内見・入居 | 相談 |
| 間取り | 事務所 | 面積 | 178.38m² |
| 所在階 | 地上8階 | 最大スペース | |
| 住所 | 東京都千代田区神田錦町3丁目19番1号 | 最寄駅 | 東京メトロ東西線「竹橋」駅徒歩3分 東京メトロ半蔵門線「神保町」駅徒歩5分 JR山手線「神田」駅徒歩12分 |
| その他交通 | 築年月 | 1982年06月 | |
| 方角 | 構造 | 鉄骨鉄筋コンクリート造(SRC造) 7階建 | |
| 契約期間 | 2年間 | 契約形態 | 普通借家 |
| 償却 | 0ヶ月 | 設備 | エレベーター , OAフロア |
| 更新料 | 0ヶ月 | 更新日 | 2025年09月11日 |
| 備考 | ・保証会社利用必須 | ||



お問い合わせの際は、「部屋No.45997」とお伝えください。





























複数駅・路線が利用できアクセス良好です!
大通りに面した建物で視認性も高いです。建物裏手には神田川が流れ、リフレッシュに最適!
EV2基・各階男女別トイレ・機械警備完備など設備面も充実しています。