推奨利用人数
30人~39人
【成約済み】スルガビル 8階
- 所在地:東京都中央区日本橋室町1丁目7番1号
- 交通:東京メトロ半蔵門線「三越前」駅徒歩1分
- 交通2:東京メトロ銀座線「日本橋」駅徒歩3分
- 交通3:JR山手線「東京」駅徒歩13分
| 賃料:-- (税別) | 管理費:344,100円 (税別) |
| 敷金:12ヶ月- | 礼金:0ヶ月 |
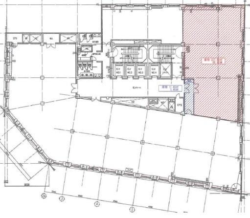
| 面積:227.5m² | 所在階:地上8階 |
| 間取り:事務所 | 築年月:1967年03月 |
| 賃料/管理費 | -- (税別)/344,100円 (税別) | フリーレント | 0ヶ月 |
|---|---|---|---|
| 敷金/礼金 | 12ヶ月/0ヶ月 | 内見・入居 | |
| 間取り | 事務所 | 面積 | 227.5m² |
| 所在階 | 地上8階 | 最大スペース | |
| 住所 | 東京都中央区日本橋室町1丁目7番1号 | 最寄駅 | 東京メトロ半蔵門線「三越前」駅徒歩1分 東京メトロ銀座線「日本橋」駅徒歩3分 JR山手線「東京」駅徒歩13分 |
| その他交通 | 築年月 | 1967年03月 | |
| 方角 | 構造 | 鉄骨鉄筋コンクリート造(SRC造) 9階建 | |
| 契約期間 | 3年間 | 契約形態 | 定期借家 |
| 償却 | 0ヶ月 | 設備 | エレベーター , OAフロア |
| 更新料 | 更新日 | 2025年09月11日 | |
| 備考 |
・2016年耐震補強工事実施済 ・セントラル空調:コアタイム 平日:7:30-17:00 ・LED照明完備 |
||



お問い合わせの際は、「部屋No.46055」とお伝えください。





























目の前は日本橋三越新館の重厚な大型オフィス!
黒い格子状の壁面が印象的な建物です
24時間有人警備でセキュリティ面も安心です