推奨利用人数
25人~29人
【成約済み】日本橋人形町スクエア 3階
- 所在地:東京都中央区日本橋堀留町1丁目8番11号
- 交通:都営浅草線「人形町」駅徒歩3分
- 交通2:東京メトロ日比谷線「小伝馬町」駅徒歩4分
- 交通3:東京メトロ半蔵門線「水天宮前」駅徒歩5分
| 賃料:相談 (税別) | 管理費:相談 (税別) |
| 敷金:相談- | 礼金:0ヶ月 |
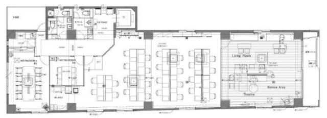
| 面積:212.6m² | 所在階:地上3階 |
| 間取り:事務所 | 築年月:1985年03月 |
| 賃料/管理費 | 相談 (税別)/相談 (税別) | フリーレント | 0ヶ月 |
|---|---|---|---|
| 敷金/礼金 | 相談/0ヶ月 | 内見・入居 | 内見可 |
| 間取り | 事務所 | 面積 | 212.6m² |
| 所在階 | 地上3階 | 最大スペース | |
| 住所 | 東京都中央区日本橋堀留町1丁目8番11号 | 最寄駅 | 都営浅草線「人形町」駅徒歩3分 東京メトロ日比谷線「小伝馬町」駅徒歩4分 東京メトロ半蔵門線「水天宮前」駅徒歩5分 |
| その他交通 | 都営新宿線「馬喰横山」駅6分、JR総武線「馬喰町」駅6分 | 築年月 | 1985年03月 |
| 方角 | 構造 | 鉄骨鉄筋コンクリート造(SRC造) 9階建 | |
| 契約期間 | 2年間 | 契約形態 | 普通借家 |
| 償却 | 0ヶ月 | 設備 | エレベーター , OAフロア |
| 更新料 | 0ヶ月 | 更新日 | 2025年09月11日 |
| 備考 | |||
| その他費用 | ・専用部分(事務室・トイレ・給湯等)の清掃は別途契約 | ||



お問い合わせの際は、「部屋No.46067」とお伝えください。





























1985年竣工、白いパネル張りの清潔感のある建物です。2017年大規模リニューアル工事を実施いたしました。
シックな黒を基調として、和のテイストを取り入れたエントランスはお客様の印象も良いです。
屋上にはテナント様利用可能なテラスを設置、ランチや休憩にお使いいただくことができます。
人形町通り沿いの立地で視認性も良好!5路線6駅利用可能で各方面へのアクセス良好です
機械警備完備でセキュリティ面も安心です