推奨利用人数
25人~29人
【成約済み】東光ビル 1階
- 所在地:東京都千代田区内神田1丁目15番16号
- 交通:東京メトロ丸の内線「淡路町」駅徒歩5分
- 交通2:JR山手線「神田」駅徒歩6分
- 交通3:都営新宿線「小川町」駅徒歩6分
| 賃料:-- (税別) | 管理費:0円 (税別) |
| 敷金:相談- | 礼金:0ヶ月 |
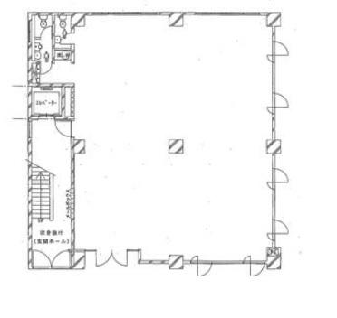
| 面積:177.71m² | 所在階:地上1階 |
| 間取り:事務所 | 築年月:1973年01月 |
| 賃料/管理費 | -- (税別)/0円 (税別) | フリーレント | 0ヶ月 |
|---|---|---|---|
| 敷金/礼金 | 相談/0ヶ月 | 内見・入居 | |
| 間取り | 事務所 | 面積 | 177.71m² |
| 所在階 | 地上1階 | 最大スペース | |
| 住所 | 東京都千代田区内神田1丁目15番16号 | 最寄駅 | 東京メトロ丸の内線「淡路町」駅徒歩5分 JR山手線「神田」駅徒歩6分 都営新宿線「小川町」駅徒歩6分 |
| その他交通 | 東京メトロ千代田線「新御茶ノ水」駅9分 | 築年月 | 1973年01月 |
| 方角 | 構造 | 鉄筋コンクリート造(RC造) 7階建 | |
| 契約期間 | その他 | 契約形態 | 定期借家 |
| 償却 | 0ヶ月 | 設備 | エレベーター |
| 更新料 | 0ヶ月 | 更新日 | 2025年09月11日 |
| 備考 | 定期借家契約:2018年10月まで | ||



お問い合わせの際は、「部屋No.46090」とお伝えください。





























タイル貼りのきれいなオフィスビル
複数路線利用可能で交通アクセス良好
個別空調
男女別トイレ
全テナント佐川宅急便