推奨利用人数
15人~19人
【成約済み】第三大丸ビル 6階
- 所在地:東京都千代田区神田小川町3番22号
- 交通:東京メトロ千代田線「新御茶ノ水」駅徒歩4分
- 交通2:JR中央・総武線「御茶ノ水」駅徒歩6分
- 交通3:東京メトロ半蔵門線「神保町」駅徒歩6分
| 賃料:-- (税別) | 管理費:0円 (税別) |
| 敷金:6ヶ月- | 礼金:0ヶ月 |
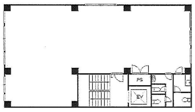
| 面積:119.01m² | 所在階:地上6階 |
| 間取り:事務所 | 築年月:1974年01月 |
| 賃料/管理費 | -- (税別)/0円 (税別) | フリーレント | 0ヶ月 |
|---|---|---|---|
| 敷金/礼金 | 6ヶ月/0ヶ月 | 内見・入居 | 内見可 |
| 間取り | 事務所 | 面積 | 119.01m² |
| 所在階 | 地上6階 | 最大スペース | |
| 住所 | 東京都千代田区神田小川町3番22号 | 最寄駅 | 東京メトロ千代田線「新御茶ノ水」駅徒歩4分 JR中央・総武線「御茶ノ水」駅徒歩6分 東京メトロ半蔵門線「神保町」駅徒歩6分 |
| その他交通 | 都営新宿線「小川町」駅6分 | 築年月 | 1974年01月 |
| 方角 | 構造 | 鉄筋コンクリート造(RC造) 7階建 | |
| 契約期間 | 2年間 | 契約形態 | 普通借家 |
| 償却 | 2ヶ月 | 設備 | エレベーター |
| 更新料 | 1ヶ月 | 更新日 | 2025年09月11日 |
| 備考 | |||



お問い合わせの際は、「部屋No.46115」とお伝えください。





























1974年竣工、ベージュ色の外壁と大きな窓が印象的な建物です。
基準となるフロアは約43坪。1フロア1テナント利用、室内に男女別のトイレと給湯設備があります。
明大通りから少し入った場所に立地しており、周辺はオフィスや大学が多いエリア。
すぐそばに郵便局がありますので、便利です。