推奨利用人数
9人~10人
【成約済み】IWビル 5階
- 所在地:東京都千代田区神田神保町2丁目10番31号
- 交通:東京メトロ半蔵門線「神保町」駅徒歩3分
- 交通2:東京メトロ東西線「九段下」駅徒歩6分
- 交通3:JR中央・総武線「水道橋」駅徒歩8分
| 賃料:-- (税別) | 管理費:33,400円 (税別) |
| 敷金:4ヶ月- | 礼金:2ヶ月 |
| 面積:55.23m² | 所在階:地上5階 |
| 間取り:事務所 | 築年月:1998年10月 |
| 賃料/管理費 | -- (税別)/33,400円 (税別) | フリーレント | 0ヶ月 |
|---|---|---|---|
| 敷金/礼金 | 4ヶ月/2ヶ月 | 内見・入居 | 内見可 |
| 間取り | 事務所 | 面積 | 55.23m² |
| 所在階 | 地上5階 | 最大スペース | |
| 住所 | 東京都千代田区神田神保町2丁目10番31号 | 最寄駅 | 東京メトロ半蔵門線「神保町」駅徒歩3分 東京メトロ東西線「九段下」駅徒歩6分 JR中央・総武線「水道橋」駅徒歩8分 |
| その他交通 | 東京メトロ丸の内線「御茶ノ水」駅14分 | 築年月 | 1998年10月 |
| 方角 | 構造 | 鉄筋コンクリート造(RC造) 6階建 | |
| 契約期間 | 2年間 | 契約形態 | 普通借家 |
| 償却 | 0ヶ月 | 設備 | エレベーター , OAフロア |
| 更新料 | 1ヶ月 | 更新日 | 2025年09月11日 |
| 備考 | |||



お問い合わせの際は、「部屋No.46202」とお伝えください。





























複数路線利用可能で交通アクセス良好
1998年築のきれいなオフィスビルです
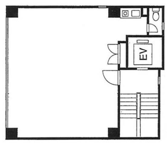
基準となるフロアは1フロア約16坪のコンパクトなサイズ。EV1基、1フロア1テナント利用のオフィスです。
室内に専用のトイレと給湯室があり使い勝手も良好。余計な柱もなくレイアウトしやすい間取りです。
大通りから少し入った場所に立地していますので、落ち着いて業務に取り組めます!
駅周辺にはコンビニや飲食店も多くランチにも便利な環境です。