推奨利用人数
20人~24人
第8田中ビル 7階
- 所在地:東京都千代田区五番町5番1号
- 交通:JR中央・総武線「市ケ谷」駅徒歩1分
- 交通2:東京メトロ有楽町線「麹町」駅徒歩7分
- 交通3:東京メトロ丸の内線「四ツ谷」駅徒歩9分
| 賃料:518,400円 (税別) | 管理費:43,200円 (税別) |
| 敷金:8ヶ月- | 礼金:0ヶ月 |
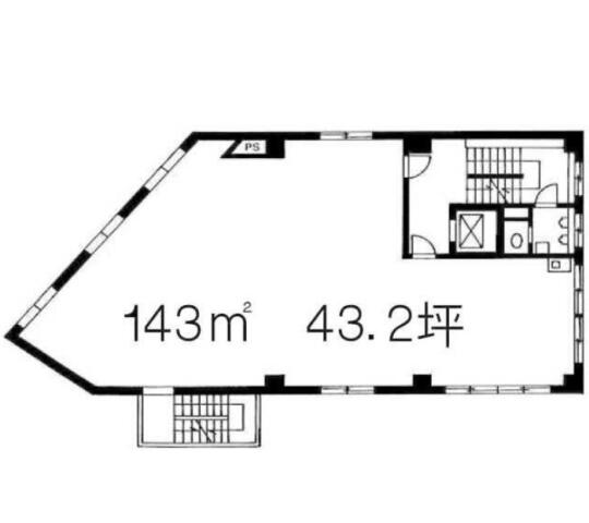
| 面積:143m² | 所在階:地上7階 |
| 間取り:事務所 | 築年月:1979年09月 |
| 賃料/管理費 | 518,400円 (税別)/43,200円 (税別) | フリーレント | 0ヶ月 |
|---|---|---|---|
| 敷金/礼金 | 8ヶ月/0ヶ月 | 内見・入居 | 内見可 |
| 間取り | 事務所 | 面積 | 143m² |
| 所在階 | 地上7階 | 最大スペース | |
| 住所 | 東京都千代田区五番町5番1号 | 最寄駅 | JR中央・総武線「市ケ谷」駅徒歩1分 東京メトロ有楽町線「麹町」駅徒歩7分 東京メトロ丸の内線「四ツ谷」駅徒歩9分 |
| その他交通 | 東京メトロ半蔵門線「半蔵門」駅12分 | 築年月 | 1979年09月 |
| 方角 | 構造 | 鉄骨鉄筋コンクリート造(SRC造) 9階建 | |
| 契約期間 | 3年間 | 契約形態 | 普通借家 |
| 償却 | 0ヶ月 | 設備 | エレベーター , OAフロア |
| 更新料 | 0ヶ月 | 更新日 | 2025年09月11日 |
| 備考 | |||



お問い合わせの際は、「部屋No.46208」とお伝えください。





























複数路線利用可能で交通アクセス良好
1979年竣工、白いパネル張りの外観の建物です。
基準となるフロアは1フロア約43坪。EV1基、1フロア1テナント利用のオフィスです。
トイレは隔階男女別トイレとなっていますので、貸室内は効率よくレイアウト可能。
セキュリティは機械警備を導入しており安心感があります。
日テレ通り沿いに立地、周辺は飲食店が多くランチ環境も充実しています。