推奨利用人数
30人~39人
【成約済み】DAISENビル 4階
- 所在地:東京都中央区日本橋小舟町11番7号
- 交通:東京メトロ半蔵門線「三越前」駅徒歩5分
- 交通2:東京メトロ日比谷線「人形町」駅徒歩6分
- 交通3:東京メトロ銀座線「日本橋」駅徒歩10分
| 賃料:-- (税別) | 管理費:196,020円 (税別) |
| 敷金:12ヶ月- | 礼金:0ヶ月 |
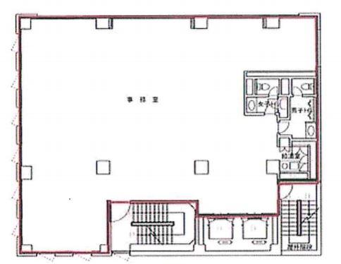
| 面積:216m² | 所在階:地上4階 |
| 間取り:事務所 | 築年月:1987年07月 |
| 賃料/管理費 | -- (税別)/196,020円 (税別) | フリーレント | 0ヶ月 |
|---|---|---|---|
| 敷金/礼金 | 12ヶ月/0ヶ月 | 内見・入居 | 内見可 |
| 間取り | 事務所 | 面積 | 216m² |
| 所在階 | 地上4階 | 最大スペース | |
| 住所 | 東京都中央区日本橋小舟町11番7号 | 最寄駅 | 東京メトロ半蔵門線「三越前」駅徒歩5分 東京メトロ日比谷線「人形町」駅徒歩6分 東京メトロ銀座線「日本橋」駅徒歩10分 |
| その他交通 | 山手線「東京駅」徒歩12分 | 築年月 | 1987年07月 |
| 方角 | 構造 | 鉄骨鉄筋コンクリート造(SRC造) 7階建 | |
| 契約期間 | 2年間 | 契約形態 | 普通借家 |
| 償却 | 0ヶ月 | 設備 | エレベーター , OAフロア |
| 更新料 | 1ヶ月 | 更新日 | 2025年09月11日 |
| 備考 | |||



お問い合わせの際は、「部屋No.46213」とお伝えください。





























自動ドアからエントランスに入ると、綺麗な大理石風の壁と2基のエレベータが目にはいりますので
共用部の管理具合からも、しっかりとした建物の印象が漂います。
加えて角地にある窓多めな1フロア1テナントタイプですので、明るめな作りになっています。
コレド室町から一直線上にある場所も、アクセス良好です。
10分徒歩圏内に、半蔵門線「三越前駅」、日比谷線「人形町」、銀座線「日本橋駅」10分と、
利便性の高い地下鉄が利用できることに加え、もう少し歩くと山手線「東京駅」も利用できる立地はぜひご注目いただきたい点です。
また、歩いてすぐに中央区では比較的広めな堀留児童公園があります。
ベンチの多い公園ですので、ランチに外へ出ればご飯を食べつつリフレッシュしていただけるでしょう。
物件ご内見の際には建物だけでなく、ぜひ周囲環境も一緒にご確認ください!