推奨利用人数
9人~10人
【成約済み】ライオンズマンション八丁堀 1B号室
- 所在地:東京都中央区八丁堀4丁目14番1号
- 交通:東京メトロ日比谷線「八丁堀」駅徒歩1分
- 交通2:東京メトロ東西線「茅場町」駅徒歩9分
- 交通3:都営浅草線「宝町」駅徒歩10分
| 賃料:-- (税別) | 管理費:0円 (税別) |
| 敷金:8ヶ月- | 礼金:2ヶ月 |
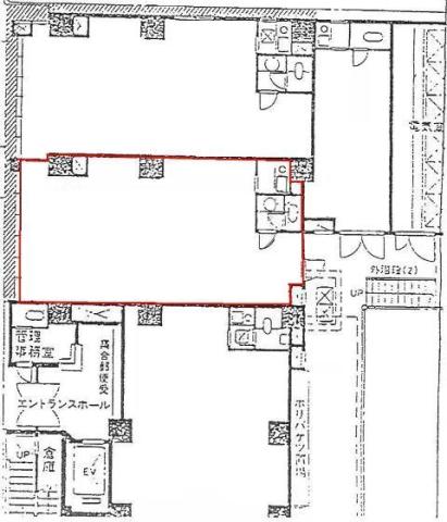
| 面積:57.2m² | 所在階:地上1階 |
| 間取り:事務所 | 築年月:1983年06月 |
| 賃料/管理費 | -- (税別)/0円 (税別) | フリーレント | 0ヶ月 |
|---|---|---|---|
| 敷金/礼金 | 8ヶ月/2ヶ月 | 内見・入居 | |
| 間取り | 事務所 | 面積 | 57.2m² |
| 所在階 | 地上1階 | 最大スペース | |
| 住所 | 東京都中央区八丁堀4丁目14番1号 | 最寄駅 | 東京メトロ日比谷線「八丁堀」駅徒歩1分 東京メトロ東西線「茅場町」駅徒歩9分 都営浅草線「宝町」駅徒歩10分 |
| その他交通 | 築年月 | 1983年06月 | |
| 方角 | 構造 | 鉄骨鉄筋コンクリート造(SRC造) 11階建 | |
| 契約期間 | 3年間 | 契約形態 | 定期借家 |
| 償却 | 0ヶ月 | 設備 | エレベーター |
| 更新料 | 1ヶ月 | 更新日 | 2025年09月11日 |
| 備考 | ・飲食不可 | ||
| その他費用 | ・貸主指定の保証会社と要保証委託契約 | ||



お問い合わせの際は、「部屋No.46221」とお伝えください。





























1983年竣工の分譲マンション!下層階に店舗・事務所区画があります。茶色のタイル張りの外観で築年数を感じさせません。
鍛冶橋通り沿いの好立地!視認性も良好です。
室内には専用トイレと給湯設備があり使い勝手も良好です。近くを隅田川が流れ、落ち着いた環境のオフィスです。