推奨利用人数
20人~24人
【成約済み】東池袋セントラルプレイス 1号室
- 所在地:東京都豊島区東池袋3丁目22番17号
- 交通:東京メトロ有楽町線「池袋」駅徒歩8分
- 交通2:JR山手線「大塚」駅徒歩10分
- 交通3:東京メトロ丸の内線「池袋」駅徒歩12分
| 賃料:相談 (税別) | 管理費:相談 (税別) |
| 敷金:相談- | 礼金:0ヶ月 |
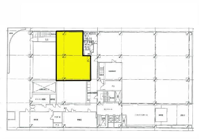
| 面積:135.91m² | 所在階:地上1階 |
| 間取り:事務所 | 築年月:1984年11月 |
| 賃料/管理費 | 相談 (税別)/相談 (税別) | フリーレント | |
|---|---|---|---|
| 敷金/礼金 | 相談/0ヶ月 | 内見・入居 | 内見可 |
| 間取り | 事務所 | 面積 | 135.91m² |
| 所在階 | 地上1階 | 最大スペース | |
| 住所 | 東京都豊島区東池袋3丁目22番17号 | 最寄駅 | 東京メトロ有楽町線「池袋」駅徒歩8分 JR山手線「大塚」駅徒歩10分 東京メトロ丸の内線「池袋」駅徒歩12分 |
| その他交通 | 築年月 | 1984年11月 | |
| 方角 | 構造 | 鉄骨鉄筋コンクリート造(SRC造) 7階建 | |
| 契約期間 | その他 | 契約形態 | 普通借家 |
| 償却 | 0ヶ月 | 設備 | エレベーター |
| 更新料 | 0ヶ月 | 更新日 | 2025年09月11日 |
| 備考 |
・平成28年6月共用部分リニューアル工事完了 ・エントランス開扉時間:月~金 7:30~20:00 |
||



お問い合わせの際は、「部屋No.46230」とお伝えください。





























1984年竣工、春日通り沿いに立地する白いタイル張りのハイグレードオフィスです!新耐震基準をクリアしています。
建物にはEV3基、共用部に男女別のトイレと給湯室があり、室内は効率よくレイアウト可能です。24時間いつでも利用可能、セキュリティは機械警備完備で安心です。
周辺はオフィス街、隣のビルにはコンビニがあり重宝します。