推奨利用人数
30人~39人
【成約済み】フォルテ新富町ビル(旧:阪和別館ビル) 8階
- 所在地:東京都中央区新富1丁目7番4号
- 交通:東京メトロ有楽町線「新富町」駅徒歩2分
- 交通2:東京メトロ日比谷線「八丁堀」駅徒歩5分
- 交通3:都営浅草線「宝町」駅徒歩5分
| 賃料:相談 (税別) | 管理費:相談 (税別) |
| 敷金:10ヶ月- | 礼金:0ヶ月 |
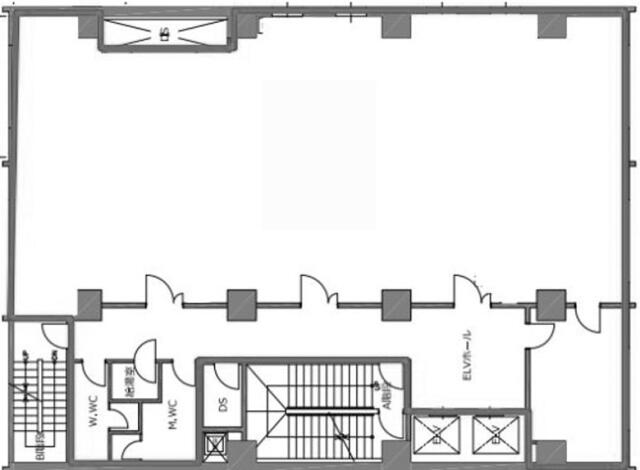
| 面積:257.72m² | 所在階:地上8階 |
| 間取り:事務所 | 築年月:1963年04月 |
| 賃料/管理費 | 相談 (税別)/相談 (税別) | フリーレント | 0ヶ月 |
|---|---|---|---|
| 敷金/礼金 | 10ヶ月/0ヶ月 | 内見・入居 | 内見可 |
| 間取り | 事務所 | 面積 | 257.72m² |
| 所在階 | 地上8階 | 最大スペース | |
| 住所 | 東京都中央区新富1丁目7番4号 | 最寄駅 | 東京メトロ有楽町線「新富町」駅徒歩2分 東京メトロ日比谷線「八丁堀」駅徒歩5分 都営浅草線「宝町」駅徒歩5分 |
| その他交通 | 築年月 | 1963年04月 | |
| 方角 | 構造 | 鉄筋コンクリート造(RC造) 9階建 | |
| 契約期間 | 2年間 | 契約形態 | 普通借家 |
| 償却 | 0ヶ月 | 設備 | エレベーター , OAフロア |
| 更新料 | 0ヶ月 | 更新日 | 2025年09月11日 |
| 備考 | |||



お問い合わせの際は、「部屋No.46253」とお伝えください。





























1963年竣工、茶色の御影石を使用した外壁で高級感ある建物です。築年数は経ていますが2006年に新耐震基準にリニューアル工事を実施していますので、気持ちよくご利用いただけます。
基準となるフロアは1フロア約67坪。EV2基、1フロア1テナント利用のオフィスです。
共用部に男女別のトイレと給湯室がありますので、貸室内は効率よくレイアウト可能です。
OAフロアや個別空調など設備もしっかり、機械警備も完備しています!
周辺はオフィス街、新富町駅徒歩2分の好立地です。