推奨利用人数
40人以上
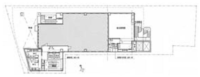
【成約済み】新御茶ノ水アーバントリニティ 2階
- 所在地:東京都千代田区神田駿河台3丁目2番1号
- 交通:東京メトロ千代田線「新御茶ノ水」駅徒歩1分
- 交通2:JR中央・総武線「御茶ノ水」駅徒歩5分
- 交通3:東京メトロ丸の内線「淡路町」駅徒歩5分
| 賃料:相談 (税別) | 管理費:相談 (税別) |
| 敷金:相談- | 礼金:0ヶ月 |
| 面積:315.17m² | 所在階:地上2階 |
| 間取り:事務所 | 築年月:2002年02月 |
| 賃料/管理費 | 相談 (税別)/相談 (税別) | フリーレント | 0ヶ月 |
|---|---|---|---|
| 敷金/礼金 | 相談/0ヶ月 | 内見・入居 | 内見可 |
| 間取り | 事務所 | 面積 | 315.17m² |
| 所在階 | 地上2階 | 最大スペース | |
| 住所 | 東京都千代田区神田駿河台3丁目2番1号 | 最寄駅 | 東京メトロ千代田線「新御茶ノ水」駅徒歩1分 JR中央・総武線「御茶ノ水」駅徒歩5分 東京メトロ丸の内線「淡路町」駅徒歩5分 |
| その他交通 | 築年月 | 2002年02月 | |
| 方角 | 構造 | 鉄骨鉄筋コンクリート造(SRC造) 12階建 | |
| 契約期間 | 2年間 | 契約形態 | 普通借家 |
| 償却 | 0ヶ月 | 設備 | エレベーター , OAフロア |
| 更新料 | 0ヶ月 | 更新日 | 2025年09月11日 |
| 備考 | |||



お問い合わせの際は、「部屋No.46283」とお伝えください。





























2002年竣工、カーテンウォールと石張りの外観が特徴的な建物です。
基準となるフロアは1フロア約158坪。EV2基、駐車場施設などあり設備面も充実しています。
共用部に男女別のトイレと給湯室があり、貸室内は効率よくレアウトすることが可能。機械警備も完備されていますのでセキュリティ面でも安心できます。
周辺は飲食店やスーパーマーケットなどもあり、利便性も良好です。