推奨利用人数
30人~39人
【成約済み】神谷町プライムプレイス 9階
- 所在地:東京都港区虎ノ門4丁目1番17号
- 交通:東京メトロ日比谷線「神谷町」駅徒歩3分
- 交通2:東京メトロ南北線「六本木一丁目」駅徒歩10分
- 交通3:都営三田線「御成門」駅徒歩12分
| 賃料:-- (税別) | 管理費:287,360円 (税別) |
| 敷金:12ヶ月- | 礼金:0ヶ月 |
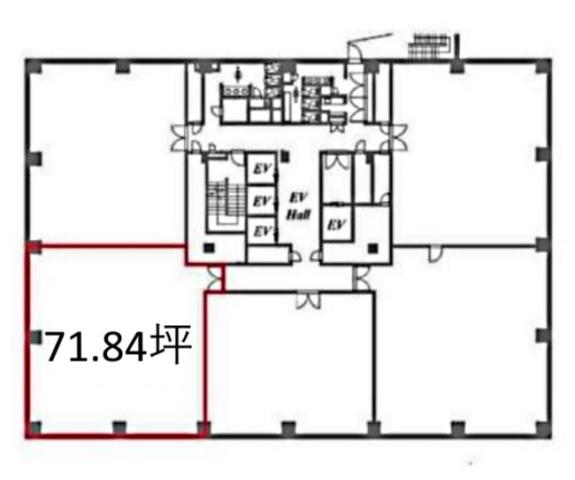
| 面積:209.29m² | 所在階:地上9階 |
| 間取り:事務所 | 築年月:2001年12月 |
| 賃料/管理費 | -- (税別)/287,360円 (税別) | フリーレント | 0ヶ月 |
|---|---|---|---|
| 敷金/礼金 | 12ヶ月/0ヶ月 | 内見・入居 | |
| 間取り | 事務所 | 面積 | 209.29m² |
| 所在階 | 地上9階 | 最大スペース | |
| 住所 | 東京都港区虎ノ門4丁目1番17号 | 最寄駅 | 東京メトロ日比谷線「神谷町」駅徒歩3分 東京メトロ南北線「六本木一丁目」駅徒歩10分 都営三田線「御成門」駅徒歩12分 |
| その他交通 | 築年月 | 2001年12月 | |
| 方角 | 構造 | 鉄骨構造(S造) 12階建 | |
| 契約期間 | 3年間 | 契約形態 | 定期借家 |
| 償却 | 0ヶ月 | 設備 | エレベーター , OAフロア |
| 更新料 | 更新日 | 2025年09月11日 | |
| 備考 | |||



お問い合わせの際は、「部屋No.46287」とお伝えください。





























神谷町プライムプレイスは地上12階地下2階建て、10階から上はレジデンス。建物は制震構造で地震の揺れを吸収する造りになっています。グレーの外観とブルーの窓がシックで高級感のある佇まいです。
開放感のあるエントランスホールにはカフェも併設されていて、打ち合わせや休憩時に重宝しそうです。
天井高2,800mm、OAフロア、エレベーター常用3基などを完備しており、設備面も充実!
防災センターには警備員が24時間常駐、機械警備と合わせセキュリティ面も安心です。