推奨利用人数
40人以上
【成約済み】藤原ビル 4階
- 所在地:東京都中央区明石町1番25号
- 交通:東京メトロ日比谷線「築地」駅徒歩4分
- 交通2:東京メトロ有楽町線「新富町」駅徒歩4分
- 交通3:JR京葉線「八丁堀」駅徒歩9分
| 賃料:-- (税別) | 管理費:167,660円 (税別) |
| 敷金:8ヶ月- | 礼金:0ヶ月 |
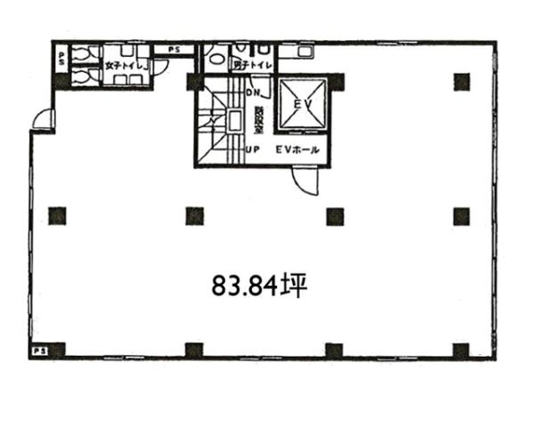
| 面積:277.12m² | 所在階:地上4階 |
| 間取り:事務所 | 築年月:1982年10月 |
| 賃料/管理費 | -- (税別)/167,660円 (税別) | フリーレント | 0ヶ月 |
|---|---|---|---|
| 敷金/礼金 | 8ヶ月/0ヶ月 | 内見・入居 | |
| 間取り | 事務所 | 面積 | 277.12m² |
| 所在階 | 地上4階 | 最大スペース | |
| 住所 | 東京都中央区明石町1番25号 | 最寄駅 | 東京メトロ日比谷線「築地」駅徒歩4分 東京メトロ有楽町線「新富町」駅徒歩4分 JR京葉線「八丁堀」駅徒歩9分 |
| その他交通 | 築年月 | 1982年10月 | |
| 方角 | 構造 | 鉄骨鉄筋コンクリート造(SRC造) 7階建 | |
| 契約期間 | 2年間 | 契約形態 | 普通借家 |
| 償却 | 1ヶ月 | 設備 | エレベーター |
| 更新料 | 1ヶ月 | 更新日 | 2025年09月11日 |
| 備考 | |||



お問い合わせの際は、「部屋No.46320」とお伝えください。





























近隣には小学校や聖路加国際病院があり、静かで落ち着いた環境です
1フロア1テナント利用で使い勝手も良好です