推奨利用人数
20人~24人
【成約済み】プリテックビル 3階
- 所在地:東京都文京区湯島2丁目7番16号
- 交通:JR中央・総武線「御茶ノ水」駅徒歩6分
- 交通2:東京メトロ千代田線「湯島」駅徒歩6分
- 交通3:東京メトロ銀座線「末広町」駅徒歩7分
| 賃料:-- (税別) | 管理費:0円 (税別) |
| 敷金:10ヶ月- | 礼金:0ヶ月 |
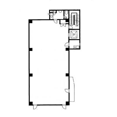
| 面積:152.86m² | 所在階:地上3階 |
| 間取り:事務所 | 築年月:1993年10月 |
| 賃料/管理費 | -- (税別)/0円 (税別) | フリーレント | 0ヶ月 |
|---|---|---|---|
| 敷金/礼金 | 10ヶ月/0ヶ月 | 内見・入居 | |
| 間取り | 事務所 | 面積 | 152.86m² |
| 所在階 | 地上3階 | 最大スペース | |
| 住所 | 東京都文京区湯島2丁目7番16号 | 最寄駅 | JR中央・総武線「御茶ノ水」駅徒歩6分 東京メトロ千代田線「湯島」駅徒歩6分 東京メトロ銀座線「末広町」駅徒歩7分 |
| その他交通 | 東京メトロ丸の内線「本郷三丁目」駅7分 | 築年月 | 1993年10月 |
| 方角 | 構造 | 鉄筋コンクリート造(RC造) 7階建 | |
| 契約期間 | 2年間 | 契約形態 | 普通借家 |
| 償却 | 1ヶ月 | 設備 | エレベーター , OAフロア |
| 更新料 | 1ヶ月 | 更新日 | 2025年09月11日 |
| 備考 | |||



お問い合わせの際は、「部屋No.46329」とお伝えください。





























1993年竣工のオフィス、新耐震基準をクリアしています。外観は白いタイル張りで清潔感のある建物です。
蔵前橋通りから少し入った場所に立地していて、比較的落ち着いた周辺環境です。
機械警備完備でセキュリティ面も安心してお使いいただけます。