推奨利用人数
15人~19人
【成約済み】DKサンビル 6階
- 所在地:東京都中央区日本橋室町4丁目2番17号
- 交通:JR山手線「神田」駅徒歩3分
- 交通2:東京メトロ銀座線「三越前」駅徒歩4分
- 交通3:JR中央線「東京」駅徒歩15分
| 賃料:-- (税別) | 管理費:103,250円 (税別) |
| 敷金:6ヶ月- | 礼金:0ヶ月 |
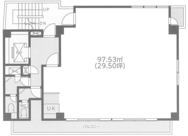
| 面積:97.53m² | 所在階:地上6階 |
| 間取り:事務所 | 築年月:1983年05月 |
| 賃料/管理費 | -- (税別)/103,250円 (税別) | フリーレント | 0ヶ月 |
|---|---|---|---|
| 敷金/礼金 | 6ヶ月/0ヶ月 | 内見・入居 | 内見可 |
| 間取り | 事務所 | 面積 | 97.53m² |
| 所在階 | 地上6階 | 最大スペース | |
| 住所 | 東京都中央区日本橋室町4丁目2番17号 | 最寄駅 | JR山手線「神田」駅徒歩3分 東京メトロ銀座線「三越前」駅徒歩4分 JR中央線「東京」駅徒歩15分 |
| その他交通 | JR総武線快速「新日本橋」駅徒歩3分 | 築年月 | 1983年05月 |
| 方角 | 構造 | 鉄骨鉄筋コンクリート造(SRC造) 8階建 | |
| 契約期間 | 2年間 | 契約形態 | 普通借家 |
| 償却 | 1ヶ月 | 設備 | エレベーター , OAフロア |
| 更新料 | 1ヶ月 | 更新日 | 2025年09月11日 |
| 備考 | ・店舗相談可能 | ||
| その他費用 | ・袖看板料1スパン(点灯なし):月額10,000円(税別) ・水道料金(固定):月額4,400円 ・ごみ処理費:月額2,200円 ・専有部清掃費用:27,000円(税別) |
||



お問い合わせの際は、「部屋No.46345」とお伝えください。





























1983年竣工、薄い茶色のタイルがアクセントの建物で、1階は飲食店になっています。
周辺は飲食店の多いエリアでランチ時に重宝します。新耐震基準に適合しています。
1フロア1テナント利用、室外に男女別トイレがあり(8階以外)、余計な柱もありませんので貸室内は効率よくレイアウトすることが可能です。機械警備完備でセキュリティ面も安心!