推奨利用人数
20人~24人
九段下東急真サクラビル 6階
- 所在地:東京都千代田区九段北1丁目3番3号
- 交通:東京メトロ半蔵門線「九段下」駅徒歩1分
- 交通2:都営三田線「神保町」駅徒歩8分
- 交通3:JR中央・総武線「水道橋」駅徒歩14分
| 賃料:相談 (税別) | 管理費:相談 (税別) |
| 敷金:相談- | 礼金:0ヶ月 |
| 面積:139.07m² | 所在階:地上6階 |
| 間取り:事務所 | 築年月:1991年04月 |
| 賃料/管理費 | 相談 (税別)/相談 (税別) | フリーレント | 0ヶ月 |
|---|---|---|---|
| 敷金/礼金 | 相談/0ヶ月 | 内見・入居 | 内見可 |
| 間取り | 事務所 | 面積 | 139.07m² |
| 所在階 | 地上6階 | 最大スペース | |
| 住所 | 東京都千代田区九段北1丁目3番3号 | 最寄駅 | 東京メトロ半蔵門線「九段下」駅徒歩1分 都営三田線「神保町」駅徒歩8分 JR中央・総武線「水道橋」駅徒歩14分 |
| その他交通 | 築年月 | 1991年04月 | |
| 方角 | 構造 | 鉄骨鉄筋コンクリート造(SRC造) 10階建 | |
| 契約期間 | 2年間 | 契約形態 | 普通借家 |
| 償却 | 10% | 設備 | エレベーター , OAフロア |
| 更新料 | 1ヶ月 | 更新日 | 2025年09月11日 |
| 備考 | |||



お問い合わせの際は、「部屋No.46386」とお伝えください。





























1991年竣工、白いパネル張りの外観の建物です。新耐震基準をクリアしています。目白通り沿いに立地しており、視認性も良好です!
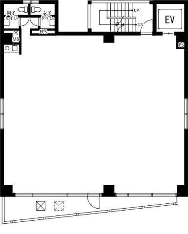
基準となるフロアは1フロア約42坪。EV1基、1フロア1テナント利用のオフィスです。
室内に男女別のトイレと給湯室があり使い勝手も良好。OAフロアや個別空調など設備も充実。機械警備完備でセキュリティ面も安心です。
九段下交差点至近、周辺はコンビニや飲食店なども多くランチにも便利な環境です。