推奨利用人数
25人~29人
【成約済み】MK麹町ビル 5階
- 所在地:東京都千代田区麹町4丁目2番1号
- 交通:東京メトロ有楽町線「麹町」駅徒歩1分
- 交通2:東京メトロ半蔵門線「半蔵門」駅徒歩5分
- 交通3:JR中央線「四ツ谷」駅徒歩9分
| 賃料:相談 (税別) | 管理費:相談 (税別) |
| 敷金:10ヶ月- | 礼金:0ヶ月 |
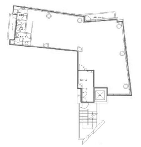
| 面積:165.39m² | 所在階:地上5階 |
| 間取り:事務所 | 築年月:1997年03月 |
| 賃料/管理費 | 相談 (税別)/相談 (税別) | フリーレント | 0ヶ月 |
|---|---|---|---|
| 敷金/礼金 | 10ヶ月/0ヶ月 | 内見・入居 | 内見可 |
| 間取り | 事務所 | 面積 | 165.39m² |
| 所在階 | 地上5階 | 最大スペース | |
| 住所 | 東京都千代田区麹町4丁目2番1号 | 最寄駅 | 東京メトロ有楽町線「麹町」駅徒歩1分 東京メトロ半蔵門線「半蔵門」駅徒歩5分 JR中央線「四ツ谷」駅徒歩9分 |
| その他交通 | 築年月 | 1997年03月 | |
| 方角 | 構造 | 鉄骨構造(S造) 10階建 | |
| 契約期間 | 2年間 | 契約形態 | 普通借家 |
| 償却 | 0ヶ月 | 設備 | エレベーター , OAフロア |
| 更新料 | 0ヶ月 | 更新日 | 2025年09月11日 |
| 備考 |
・正面入口 平日・土 6:00-22:00 日祝日:閉 上記時間以外はセキュリティカード利用により入館可能・24時間使用可能 |
||
| その他費用 | ・フリーレント期間中、共益費相当@3500発生 ・契約形態により条件異なる ・保証会社加入で敷金相談 ・保証会社加入で敷金応相談 |
||



お問い合わせの際は、「部屋No.46392」とお伝えください。





























1997年竣工、新耐震基準をクリアしています。新宿通り沿いの角地に立地したひときわ目立つガラスとグレーのパネル張りの建物です。1Fにはコンビニがあり来客時の目印になります。
1フロア1テナント利用のオフィスには、男女別トイレと給湯室が1箇所にまとめられていて、効率よくレイアウトができます。個別空調やOAフロアなど設備面も充実しています。セキュリティは機械警備システムが導入されています。