推奨利用人数
5人~6人
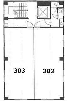
【成約済み】西澤ビル 303号室
- 所在地:東京都文京区本郷2丁目16番10号
- 交通:東京メトロ丸の内線「本郷三丁目」駅徒歩4分
- 交通2:JR中央線「水道橋」駅徒歩3分
- 交通3:JR中央・総武線「御茶ノ水」駅徒歩12分
| 賃料:-- (税別) | 管理費:12,000円 (税別) |
| 敷金:4ヶ月- | 礼金:2ヶ月 |
| 面積:39.67m² | 所在階:地上3階 |
| 間取り:事務所 | 築年月:1973年03月 |
| 賃料/管理費 | -- (税別)/12,000円 (税別) | フリーレント | 0ヶ月 |
|---|---|---|---|
| 敷金/礼金 | 4ヶ月/2ヶ月 | 内見・入居 | 内見可 |
| 間取り | 事務所 | 面積 | 39.67m² |
| 所在階 | 地上3階 | 最大スペース | |
| 住所 | 東京都文京区本郷2丁目16番10号 | 最寄駅 | 東京メトロ丸の内線「本郷三丁目」駅徒歩4分 JR中央線「水道橋」駅徒歩3分 JR中央・総武線「御茶ノ水」駅徒歩12分 |
| その他交通 | 築年月 | 1973年03月 | |
| 方角 | 構造 | 鉄骨構造(S造) 6階建 | |
| 契約期間 | 2年間 | 契約形態 | 普通借家 |
| 償却 | 2ヶ月 | 設備 | エレベーター |
| 更新料 | 1ヶ月 | 更新日 | 2025年09月11日 |
| 備考 | |||
| その他費用 | ・契約事務手数料5,000円(税別) ・保証会社利用可能 ・更新事務手数料 新賃料の0.5ヶ月分 |
||



お問い合わせの際は、「部屋No.46408」とお伝えください。





























1973年竣工、白い吹き付けの外観の建物です。壱岐坂通りから少し入った静かな環境のエリアです。
共用部に男女別のトイレと給湯設備がありますので、貸室内は効率よくレイアウトすることが可能です。オートロック+TVモニター付インターホンでセキュリティ面も安心です。
複数路線の利用可能な水道橋駅まで徒歩3分!東京メトロ丸の内線「本郷三丁目」駅までも徒歩4分でアクセス可能です。