推奨利用人数
25人~29人
【成約済み】アーバンネット日本橋ビル 1階
- 所在地:東京都中央区日本橋人形町2丁目14番10号
- 交通:東京メトロ半蔵門線「水天宮前」駅徒歩2分
- 交通2:東京メトロ日比谷線「人形町」駅徒歩5分
- 交通3:都営新宿線「浜町」駅徒歩9分
| 賃料:相談 (税別) | 管理費:相談 (税別) |
| 敷金:12ヶ月- | 礼金:0ヶ月 |
| 面積:173.26m² | 所在階:地上1階 |
| 間取り:事務所 | 築年月:2001年07月 |
| 賃料/管理費 | 相談 (税別)/相談 (税別) | フリーレント | 0ヶ月 |
|---|---|---|---|
| 敷金/礼金 | 12ヶ月/0ヶ月 | 内見・入居 | |
| 間取り | 事務所 | 面積 | 173.26m² |
| 所在階 | 地上1階 | 最大スペース | |
| 住所 | 東京都中央区日本橋人形町2丁目14番10号 | 最寄駅 | 東京メトロ半蔵門線「水天宮前」駅徒歩2分 東京メトロ日比谷線「人形町」駅徒歩5分 都営新宿線「浜町」駅徒歩9分 |
| その他交通 | 築年月 | 2001年07月 | |
| 方角 | 構造 | 鉄骨構造(S造) 8階建 | |
| 契約期間 | その他 | 契約形態 | |
| 償却 | 0ヶ月 | 設備 | エレベーター , OAフロア |
| 更新料 | 更新日 | 2025年09月11日 | |
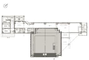
| 備考 | 事務室47.09坪・倉庫5.32坪のセット貸し 中央天井5.3メートル、周囲天井3.2メートルの特殊フロア | ||



お問い合わせの際は、「部屋No.46416」とお伝えください。





























ガラス・アルミ・木・石の素材を生かしたシンプルなデザインの建物
周辺は飲食店をはじめコンビニ・郵便局が近く便利な立地です