推奨利用人数
20人~24人
フォーラム日本橋(旧:ミヤギ日本橋ビル) 9階
- 所在地:東京都中央区日本橋本町1丁目4番9号
- 交通:東京メトロ銀座線「三越前」駅徒歩4分
- 交通2:都営浅草線「日本橋」駅徒歩7分
- 交通3:東京メトロ日比谷線「人形町」駅徒歩8分
| 賃料:639,000円 (税別) | 管理費:203,500円 (税別) |
| 敷金:6ヶ月- | 礼金:0ヶ月 |
| 面積:156.33m² | 所在階:地上9階 |
| 間取り:事務所 | 築年月:1992年05月 |
| 賃料/管理費 | 639,000円 (税別)/203,500円 (税別) | フリーレント | 0ヶ月 |
|---|---|---|---|
| 敷金/礼金 | 6ヶ月/0ヶ月 | 内見・入居 | 内見可 |
| 間取り | 事務所 | 面積 | 156.33m² |
| 所在階 | 地上9階 | 最大スペース | |
| 住所 | 東京都中央区日本橋本町1丁目4番9号 | 最寄駅 | 東京メトロ銀座線「三越前」駅徒歩4分 都営浅草線「日本橋」駅徒歩7分 東京メトロ日比谷線「人形町」駅徒歩8分 |
| その他交通 | 築年月 | 1992年05月 | |
| 方角 | 構造 | 鉄骨鉄筋コンクリート造(SRC造) 10階建 | |
| 契約期間 | 3年間 | 契約形態 | 定期借家 |
| 償却 | 0ヶ月 | 設備 | エレベーター , OAフロア |
| 更新料 | 1ヶ月 | 更新日 | 2025年09月11日 |
| 備考 | ・9階:2025年3月 水回り(トイレ、専用給湯室)リフォーム済 | ||



お問い合わせの際は、「部屋No.46417」とお伝えください。





























1992年竣工、グレーのタイル張りのシンプルな外観の建物です。新耐震基準をクリアしています。
2020年 共用部(エントランス)大規模修繕工事済。
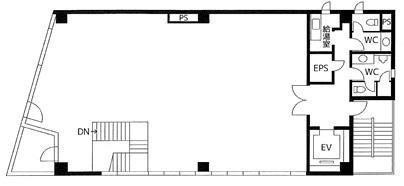
基準となるフロアは1フロア約47坪。EV1基、1フロア1テナント利用のオフィスです。
各階共用部に男女別トイレと給湯室を完備。貸室内は余計な柱もなく効率よくレイアウトすることが可能です。
周辺はオフィス街。すぐそばにコンビニがありますので何かと便利です。
三越前駅方面へ進めば「コレド室町」や「三越本店」など大型商業施設が並びにぎやかです。