推奨利用人数
30人~39人
【成約済み】住長第二ビル 3階
- 所在地:東京都中央区日本橋大伝馬町6番7号
- 交通:東京メトロ日比谷線「小伝馬町」駅徒歩1分
- 交通2:都営新宿線「馬喰横山」駅徒歩6分
- 交通3:東京メトロ銀座線「日本橋」駅徒歩11分
| 賃料:相談 (税別) | 管理費:相談 (税別) |
| 敷金:相談- | 礼金:0ヶ月 |
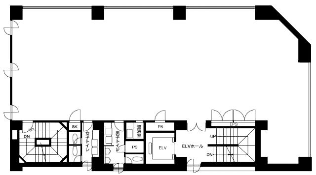
| 面積:220.66m² | 所在階:地上3階 |
| 間取り:事務所 | 築年月:1988年05月 |
| 賃料/管理費 | 相談 (税別)/相談 (税別) | フリーレント | 0ヶ月 |
|---|---|---|---|
| 敷金/礼金 | 相談/0ヶ月 | 内見・入居 | 内見可 |
| 間取り | 事務所 | 面積 | 220.66m² |
| 所在階 | 地上3階 | 最大スペース | |
| 住所 | 東京都中央区日本橋大伝馬町6番7号 | 最寄駅 | 東京メトロ日比谷線「小伝馬町」駅徒歩1分 都営新宿線「馬喰横山」駅徒歩6分 東京メトロ銀座線「日本橋」駅徒歩11分 |
| その他交通 | 築年月 | 1988年05月 | |
| 方角 | 構造 | 鉄骨鉄筋コンクリート造(SRC造) 8階建 | |
| 契約期間 | 2年間 | 契約形態 | 普通借家 |
| 償却 | 10% | 設備 | エレベーター , OAフロア |
| 更新料 | 1ヶ月 | 更新日 | 2025年09月11日 |
| 備考 | |||
| その他費用 | ・袖看板あり(有償) | ||



お問い合わせの際は、「部屋No.46418」とお伝えください。





























大通り沿いの角ビルですので、視認性が高く貸室内は2面採光になっています。
基準となるフロアは1フロア約67坪。EV1基、募集時期やフロアにより分割区画もございます。
機械警備完備、男女別トイレ、OA床など設備面も充実しています。
複数路線・駅が利用できる好立地!駅前ですので飲食店やコンビニ・銀行などあり利便性も良好です。