推奨利用人数
20人~24人
【成約済み】銀座ストラパックビル 3階
- 所在地:東京都中央区銀座8丁目16番6号
- 交通:JR山手線「新橋」駅徒歩9分
- 交通2:東京メトロ日比谷線「東銀座」駅徒歩8分
- 交通3:都営大江戸線「汐留」駅徒歩6分
| 賃料:相談 (税別) | 管理費:相談 (税別) |
| 敷金:10ヶ月- | 礼金:0ヶ月 |
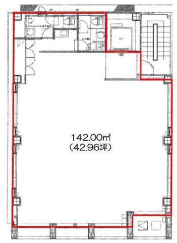
| 面積:142.02m² | 所在階:地上3階 |
| 間取り:事務所 | 築年月:2004年02月 |
| 賃料/管理費 | 相談 (税別)/相談 (税別) | フリーレント | 0ヶ月 |
|---|---|---|---|
| 敷金/礼金 | 10ヶ月/0ヶ月 | 内見・入居 | 内見可 |
| 間取り | 事務所 | 面積 | 142.02m² |
| 所在階 | 地上3階 | 最大スペース | |
| 住所 | 東京都中央区銀座8丁目16番6号 | 最寄駅 | JR山手線「新橋」駅徒歩9分 東京メトロ日比谷線「東銀座」駅徒歩8分 都営大江戸線「汐留」駅徒歩6分 |
| その他交通 | 築年月 | 2004年02月 | |
| 方角 | 構造 | 鉄骨構造(S造) 8階建 | |
| 契約期間 | その他 | 契約形態 | |
| 償却 | 0ヶ月 | 設備 | エレベーター , OAフロア |
| 更新料 | 0ヶ月 | 更新日 | 2025年09月11日 |
| 備考 | |||



お問い合わせの際は、「部屋No.46419」とお伝えください。





























2004年竣工、格子状の外装で窓面を仕切ったスタイリッシュなデザインの外観です。新耐震基準をクリアしています。
基準となるフロアは1フロア約43坪。EV1基、室内に男女別のトイレと給湯設備があります。
貸室内は余計な柱もなく、レイアウトしやすい間取りです。設備面でも機械警備・OAフロアー・個別空調など充実しています。
近隣はオフィス街で、飲食店も多く便利な立地です。近くには銀座郵便局もあり便利です。