推奨利用人数
30人~39人
【成約済み】ATMビル 2階
- 所在地:東京都文京区湯島1丁目1番2号
- 交通:JR中央・総武線「御茶ノ水」駅徒歩5分
- 交通2:JR山手線「秋葉原」駅徒歩7分
- 交通3:東京メトロ銀座線「末広町」駅徒歩9分
| 賃料:相談 (税別) | 管理費:相談 (税別) |
| 敷金:6ヶ月- | 礼金:0ヶ月 |
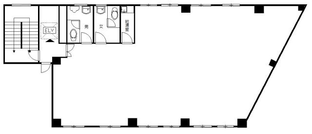
| 面積:204.1m² | 所在階:地上2階 |
| 間取り:事務所 | 築年月:1984年12月 |
| 賃料/管理費 | 相談 (税別)/相談 (税別) | フリーレント | 0ヶ月 |
|---|---|---|---|
| 敷金/礼金 | 6ヶ月/0ヶ月 | 内見・入居 | |
| 間取り | 事務所 | 面積 | 204.1m² |
| 所在階 | 地上2階 | 最大スペース | |
| 住所 | 東京都文京区湯島1丁目1番2号 | 最寄駅 | JR中央・総武線「御茶ノ水」駅徒歩5分 JR山手線「秋葉原」駅徒歩7分 東京メトロ銀座線「末広町」駅徒歩9分 |
| その他交通 | 築年月 | 1984年12月 | |
| 方角 | 構造 | 鉄骨構造(S造) 5階建 | |
| 契約期間 | 5年間 | 契約形態 | 定期借家 |
| 償却 | 0ヶ月 | 設備 | エレベーター |
| 更新料 | 更新日 | 2025年09月11日 | |
| 備考 |
定期借家契約5年(入居者側から、契約期間中の中途解約可能) 普通借家 相談可能 |
||



お問い合わせの際は、「部屋No.46426」とお伝えください。





























湯島聖堂・神田明神のすぐ近く、閑静な周辺環境です
機械警備完備でセキュリティ面も安心です