推奨利用人数
30人~39人
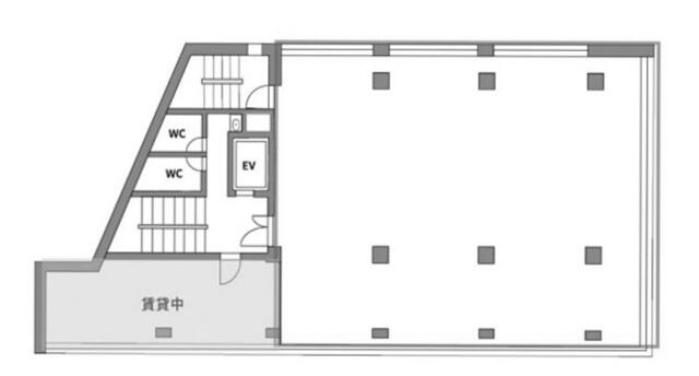
【成約済み】松浦ビル(内神田) 4A号室
- 所在地:東京都千代田区内神田3丁目16番9号
- 交通:JR山手線「神田」駅徒歩2分
- 交通2:東京メトロ丸の内線「淡路町」駅徒歩5分
- 交通3:都営新宿線「小川町」駅徒歩7分
| 賃料:相談 (税別) | 管理費:相談 (税別) |
| 敷金:6ヶ月- | 礼金:0ヶ月 |
| 面積:249.92m² | 所在階:地上4階 |
| 間取り:事務所 | 築年月:1961年09月 |
| 賃料/管理費 | 相談 (税別)/相談 (税別) | フリーレント | 0ヶ月 |
|---|---|---|---|
| 敷金/礼金 | 6ヶ月/0ヶ月 | 内見・入居 | 相談 |
| 間取り | 事務所 | 面積 | 249.92m² |
| 所在階 | 地上4階 | 最大スペース | |
| 住所 | 東京都千代田区内神田3丁目16番9号 | 最寄駅 | JR山手線「神田」駅徒歩2分 東京メトロ丸の内線「淡路町」駅徒歩5分 都営新宿線「小川町」駅徒歩7分 |
| その他交通 | 築年月 | 1961年09月 | |
| 方角 | 構造 | 鉄骨鉄筋コンクリート造(SRC造) 6階建 | |
| 契約期間 | 2年間 | 契約形態 | 普通借家 |
| 償却 | 1ヶ月 | 設備 | エレベーター , OAフロア |
| 更新料 | 0ヶ月 | 更新日 | 2025年09月11日 |
| 備考 |
・エントランス開閉時間:平日8:00~19:00、土日祝Close ※上記時間帯以外は専用入り口より24時間入退館可能 |
||



お問い合わせの際は、「部屋No.46446」とお伝えください。





























1961年竣工、神田平成通りから1本入った場所にある、シックな色合いの建物です。
基準となるフロアは1フロア約90坪。フロアによって分割貸の区画もございます。共用部に男女別のトイレがあり貸室内は効率よくレイアウトすることが可能です。
徒歩2分の神田駅は多数の路線が利用可能で、アクセス便利です!周辺は飲食店も多くランチにも困りません。